This prominent Industrial 1 zoned corner property on State Highway 1 offers substantial redevelopment potential together with immediate owner-occupier opportunities.
Occupying a commanding position at the intersection of Main Street and Sutherland Terrace, the site enjoys exceptional visibility, strong passing traffic and high-impact signage opportunities alongside neighbouring high-profile national brands including McDonald's, Burger King and Guthrie Bowron.
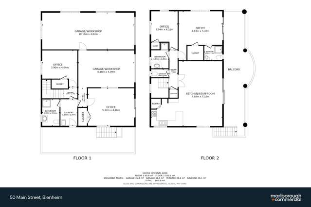
Set on 895sqm (more or less) of land, the property includes a versatile 228sqm (more or less) two-storey building that can be retained, modified or removed entirely.
For developers, the generous land size, prime corner location, two dedicated vehicle crossing entrances from Sutherland Terrace, on-site parking and yard space create an outstanding platform to pursue change of use consent for higher-value commercial redevelopment in this proven location.
For owner occupiers, the ground floor provides a functional showroom, workshop and office space ready for immediate use or conversion, while the upper level features a two-bedroom caretaker's flat with kitchen, lounge and bathrooms, ideal for live-work or staff accommodation.
A rare opportunity to secure a high-profile Blenheim site with genuine flexibility for both forward-thinking developers and ambitious owner occupiers.
Key features
• Industrial 1 zoned corner site on SH1 offering exceptional visibility and strong redevelopment upside
• 895sqm (more or less) land with dual vehicle crossings from Sutherland Terrace plus on-site parking
• Excellent owner occupier opportunity with versatile 228sqm (more or less) building featuring showroom/workshop space and two-bedroom caretaker's flat
For Sale $1,295,000 plus GST (if any)
Form more information or to view, contact the exclusive agents Zak Thorpe or Grant Thorpe