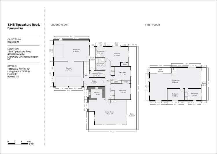
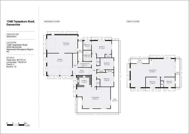
- 134B Tipapakuku Road

Floorplan

+49
Pictures49
Floorplan1
Map
Video & 3D tour1
Data
Property insights
OneRoof estimate
Property data
Type of title
Freehold
Floor area
192m²
Land area
8,350m²
Decade of Built
1980s
About the area
Home services
Fortnightly Repayments
Loan term
Total interest
Interest rate
Total cost
Press calculate to work out your mortgage repayments and how quickly you can pay off your loan.


On your side with these great benefits
Natural disaster cover for earthquakes, natural landslips, hydrothermal activity, tsunami, natural fires, & volcanic activity.
Temporary accommodation for you, your family, and your pets if you need to be evacuated from your home.
Get replacement keys and locks if yours get lost or stolen and pay no excess.
Access to AMI HomeHub, our first-class home repairer that brings together a team of experts to take care of your home claim repairs from start to finish.
Learn about these great benefits and more
*Exclusions and limitations apply. Talk to us about these or refer to the full policy document which can be found on our website.

Dannevirke, Tararua
Dannevirke is a suburb which lies within the Territorial Authority of Tararua, one of 12 residential suburbs which form the wider region. Dannevirke is the largest suburb of Tararua in terms of the total number of residential housing stock.
Dannevirke provides a range of housing stock, with the earliest residential housing recorded in the area constructed between 1880 - 1889. The majority of the residential housing stock in the locality was constructed between 1950 - 1959.
Residential housing stock in Dannevirke is made up of approximately 81% residential housing , 1% residential investment housing and 17% lifestyle properties.
Learn moreSimilar properties for rural

























































