A well presented and adaptable tenancy close to the Hastings CBD, 405–407 King Street North offers excellent access, and a practical mix of office and workshop space.
Its position just off St Aubyn Street and Karamu Road gives businesses efficient links across the city, while on site and free street parking make daily operations easy for staff and visitors.
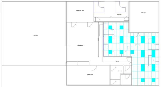
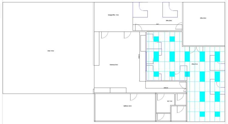
With 145sqm of office and 190sqm of warehouse or workshop, the layout supports a wide range of uses including office and storage operations, trade retail, logistics, or a split tenancy for complementary teams.
• Prime Hastings location near the CBD with access to key arterials
• Five on site car parks plus free on street parking
• Flexible configuration suited to office, workshop, trade retail, or logistics
• 145sqm office and 190sqm warehouse/workshop
The combination of location, flexibility, and functionality makes this a compelling option and is available from June 1st, 2026. Call Matt from Bayleys to discuss further.