Brand new offices, retail and hospitality – 206 Queen Street West
A bold new commercial development is emerging in the heart of Hastings CBD, combining heritage character with contemporary workspace design. Positioned within an exciting revitalised city block, 206 Queen Street West offers a limited collection of boutique commercial tenancies suited to professional services, retail operators, and hospitality concepts.
Available Spaces:
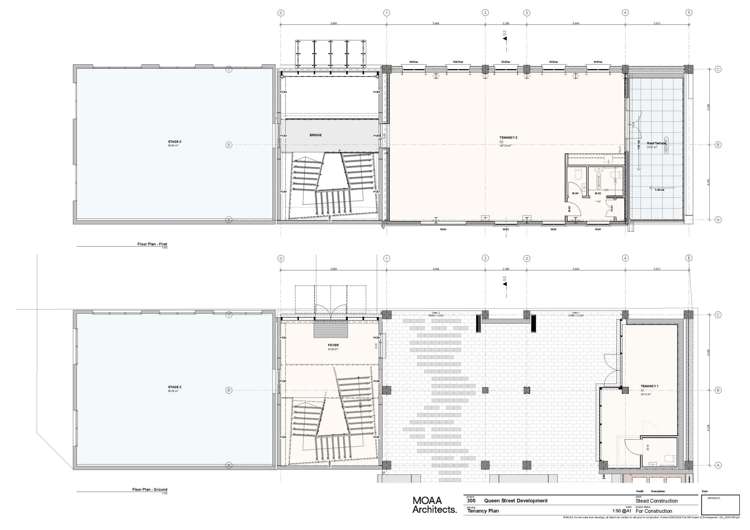
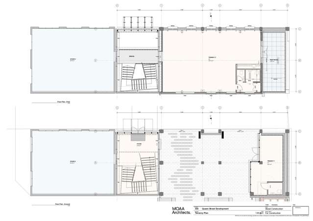
Level one – offices
• 107m2 office suite with 23.97m2 private terrace
• 90m2 office suite
• Lease individually or combine for a larger professional workspace
Ground Floor
• 30m2 hospitality tenancy – ideal café, wine bar, or boutique eatery
• 90m2 retail or office tenancy with strong street presence
Designed to activate the precinct, these spaces will benefit from excellent natural light, strong pedestrian flow, and proximity to new public green spaces and laneway connections.
This is a rare opportunity to secure brand-new commercial space within one of Hastings’ most exciting city-centre redevelopments.
Contact Property Brokers now to position your business at the forefront of Hastings’ next CBD chapter.