House & Land Package by Stroud Homes Christchurch South
SITE COSTS
TC2 foundation
Site Works to 500mm
INCLUSIONS
With over 90 FULLY LOADED inclusions, your home will come packed with everything you need to move in!
Here are some of our highlight inclusions;
- 900mm Westinghouse stainless steel freestanding oven with gas hob
- 900mm Westinghouse stainless steel rangehood or built in rangehood, vented to exterior
- Westinghouse stainless steel dishwasher
- Soft close to all kitchen cupboards and drawers
- Bulkheads above the overhead cupboards
- Independent handover inspection
- Frameless mirrors
- Aluminium front entry door
- Floor coverings
- Colour consultation relating to all aspects of the home
- Standard light LED fittings throughout, as per plan
- Home heating - 2 Hi-Wall Heat Pumps (1 in living
- and 1 in master bedroom)
- Double glazed aluminium sliding doors and windows,
- compliant with local H1 standards.
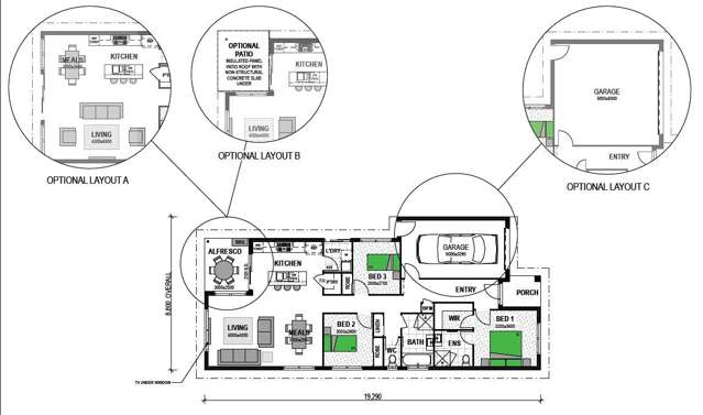
ABOUT FANTAIL 153
The Fantail 153 is a compact three bedroom house plan designed for today’s living, packing so many features into well thought out spaces that work!
Built for family living, you will love the galley style kitchen with a breakfast bar, great for afternoon snacks.
The bright and breezy living area is amazing for entertaining with great sized sliding doors out onto the alfresco area.
There are plenty of optional upgrades available with this plan to suit your lifestyle needs. Need a larger living area or a double garage? Ask how we can tailor this plan.
Ideal for narrow sections, this design is great for young families, first home buyers and investors.
ABOUT HARAKEKE ESTATES
Discover Harakeke Estates, an exclusive development of 22 premium sections situated at 15 Cunliffe Road, Redwood. This desirable location combines the peaceful charm of a natural setting with the convenience of urban living – perfect for families, professionals, and retirees alike. With titles now issued, now is the time to secure your slice of this growing and vibrant community.
Nestled beside the regenerated Styx River, Harakeke Estates offers a scenic and serene backdrop for your future home. Generously sized sections provide the flexibility to build a design that suits your lifestyle, while careful planning ensures excellent sun and privacy throughout the neighbourhood. With Main North Road and State Highway 1 just minutes away, daily travel is effortless. Nearby, Northlands Mall, Northwood Supa Centre, and Redwood Village offer easy access to shopping, dining, and everyday essentials.
Families will appreciate the nearby schools, parks, and recreation facilities, which add to the well-rounded lifestyle on offer.
Harakeke Estates is a rare opportunity to build your dream home in one of Redwood’s most appealing new neighbourhoods.
ABOUT REDWOOD
The Redwood area includes Redwood North, South and Styx Mill, covering a total area of 4.0943 square
kilometres and is situated approximately 7.8 kilometres north of the Christchurch Central Business District
(CBD). Redwood was originally named Styx, but was re-named Redwood in the 1960s when the local
residents voted to rename Redwood after a Sequoia redwood tree that still stands in Prestons Road.
Redwood was seen as a farming area of Christchurch when first settled; it is now made up of a mixture of
rural land where market farms are run, light industrial areas and older and newer residential suburbs.
The schools located in Redwood are Redwood Primary School, Northcote Primary School and St Bede’s
College. Redwood hosts five preschools and Plunket rooms. The majority of these sites are located on Main
North Road in Redwood.
Main North Road is a four lane road that is one of the main thoroughfares for traffic travelling north of the
city. Main North Road cuts through the middle of Redwood. There is a small business village within
Redwood located on Main North Road.
Redwood hosts 12 parks and reserves, including Redwood Park, Owen Mitchell Park and Murchison Park.
Redwood has its own community radio station called Good Music FM 107.5 (formerly know as Radio
Redwood).
ABOUT KENTON ROSS, Sales Consultant, Stroud Homes Christchurch South
Kenton brings a wealth of knowledge to the building industry, having cultivated experience as a builder and project manager. He is deeply passionate about the opportunity to create new homes for clients, who often become valued friends throughout the process. Kenton places significant emphasis on understanding and addressing each client's unique needs and desires, ensuring that their vision is brought to life in their new home.
Kenton regards supporting clients on their new build journey as a true honour, fostering a collaborative and respectful relationship throughout the endeavor.
ABOUT STROUD HOMES
With more than 20 years of design and building experience, Stroud Homes has a proven track record of success and a strong reputation for exceptional service and superior quality. The man behind the locally owned brand is James Stroud. Stroud Homes has a great reputation as an award-winning builder. We can provide simple and cost-effective advice, from our designs or yours. How do we do it?
1. Unbeatable buying power via excellent supplier relationships
2. Commitment to continuous improvement to customer service and quality
3. Pre-pricing new homes on vacant land
Stroud Homes care about our customers and we do what we say we’re going to do. We take the time to listen and work alongside our customers every step of the way, so the end result feels just right,like home.
CONSUMER PLEASE NOTE
Consumer please note: Stroud Homes is not a real estate agent, cannot sell land and will refer you to a licensed agent to complete any land purchase. Stroud Homes has used the price (as advertised by local real estate agents) for the block of land referred to in this package. Using this advertised price allows us to helpfully provide you with a price that is more realistic because we’ve tailor fit the home to the land - considering site works, water and sewer pipe and electrical lead - in lengths and other site specific items.
Images and photographs are an example only and may have representations of fixtures and upgraded items not included in the package price or Fully Loaded Inclusions of Stroud Homes.
See Stroud Homes website for House & Land Package Terms & Conditions