Currently under construction is this brand new retail or office unit. Well located in a desirable location at the Cashmere end of Colombo St, between the "Z" petrol station and the Thorrington Shops.
Excellent street frontage to busy Colombo Street, the main street of NZ's second largest city, providing excellent signage opportunity and exposure to passing traffic.
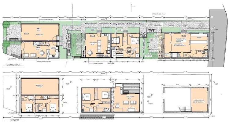
This unit is made up of an open plan area of 70m2* on the ground floor plus 23.9m2* of mezzanine. Total area of 93.9m2*.
(* approx.)
Call sole agent Paula Raine 027 221 4997 for further information.
Lease: By Negotiation + GST + outgoings