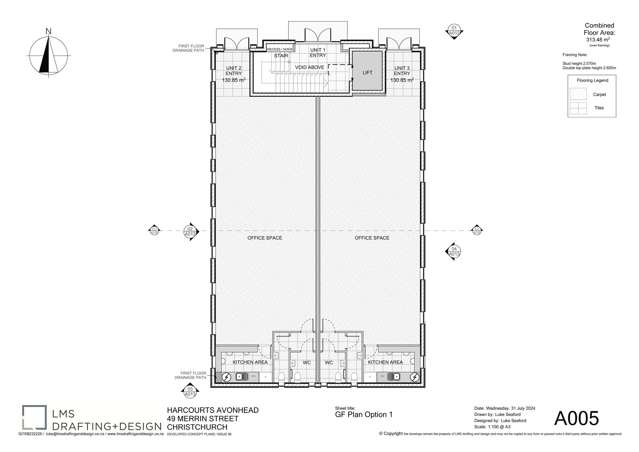
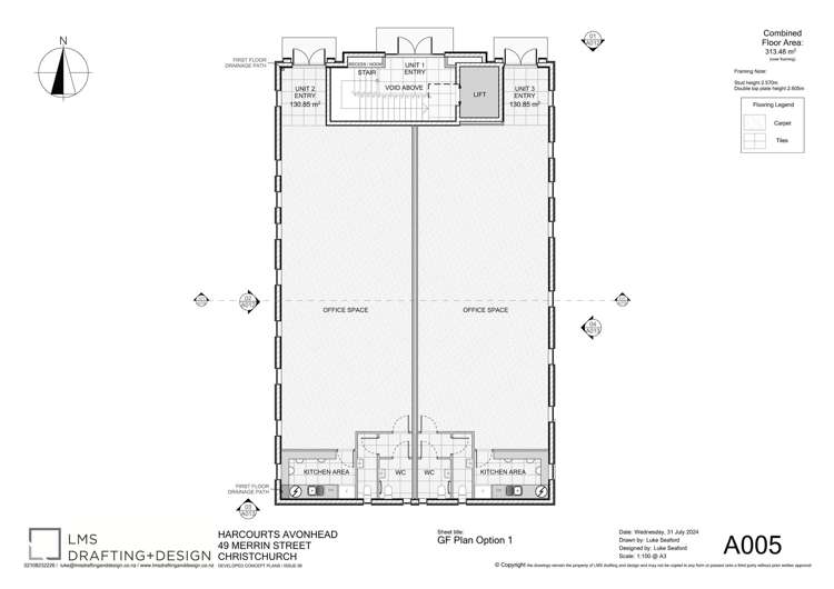
This striking, modern and brand new building will accommodate the new Harcourts Grenadier Avonhead office on the first floor and a law office on the neighbouring ground floor, leaving the last tenancy on the ground floor being approximately 131m2 available for lease and occupy from early 2026.
Adjacent to Avonhead Mall, an opportunity exits for a professional office tenant to lease the last remaining space and benefit from the stunning design of the building, the neighbouring tenants and the profile of this location.
• Approx. 131m2
• Onsite carparking
• Professional hub
• Available for fitout end of 2025
For further information contact Paul Middleditch on 027 276 7047 or [email protected]