- 145 Kings Avenue

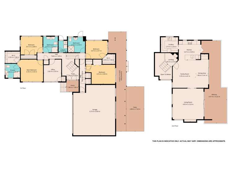
Floorplan

+30
Pictures30
Floorplan1
Map
Data
Property insights
Rating valuation
OneRoof mentions
Listed for sale on OneRoof for 47 days (last updated on 20 January) and was last sold in 2016 for $1,200,000. Its latest rating valuation by Tauranga council is $1,580,000 as of 2023. This property has appeared in 3880 searches in the last 30 days. There are 3 5-bedroom properties for sale nearby. There are 27 properties for sale in Matua.
Similar properties for sale
Property data
On OneRoof
47 days
Property Type
House
Floor Area
253m²
Land Area
736m²
About the area
Market insights
Insights for all bedroom homes in Matua
Property type
All property types
Bedrooms
All
Time (yrs)
5 yrs
Home services
Fortnightly Repayments
Loan term
Total interest
Interest rate
Total cost
Press calculate to work out your mortgage repayments and how quickly you can pay off your loan.


On your side with these great benefits
Natural disaster cover for earthquakes, natural landslips, hydrothermal activity, tsunami, natural fires, & volcanic activity.
Temporary accommodation for you, your family, and your pets if you need to be evacuated from your home.
Get replacement keys and locks if yours get lost or stolen and pay no excess.
Access to AMI HomeHub, our first-class home repairer that brings together a team of experts to take care of your home claim repairs from start to finish.
Learn about these great benefits and more
*Exclusions and limitations apply. Talk to us about these or refer to the full policy document which can be found on our website.

Matua, Tauranga
Matua is a suburb which lies within the Territorial Authority of Tauranga, one of 24 residential suburbs which form the wider region. Matua is the 9th largest suburb of Tauranga in terms of the total number of residential housing stock.
Matua provides a range of housing stock, with the earliest residential housing recorded in the area constructed between 1910 - 1919. The majority of the residential housing stock in the locality was constructed between 1970 - 1979.
Residential housing stock in Matua is made up of approximately 99% residential housing and 1% residential investment housing properties.
Learn moreADVERTISEMENT












































