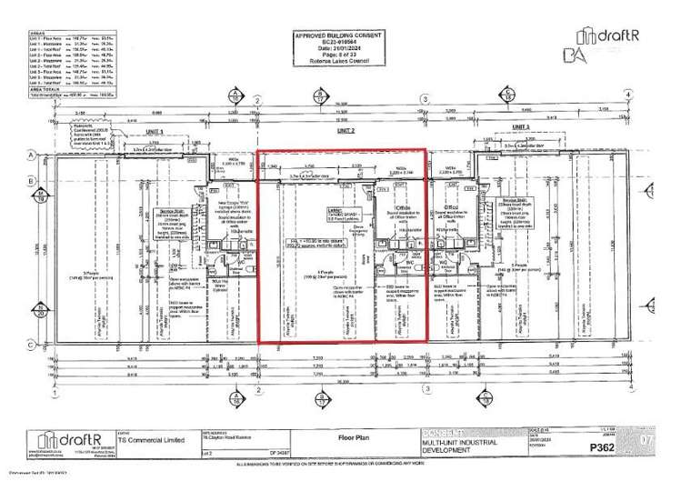
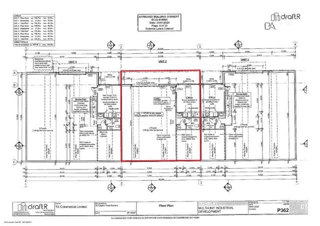
This new build workshop is well located for a small sole trader seeking a base to grow their business.
- Owner occupier in unit 1
- 83sqm workshop/warehouse
- 31sqm office/staff amenities
- 31sqm of mezzanine storage
- High stud, tilt slab construction