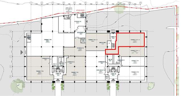
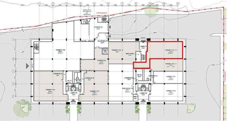
Position your business within a transforming Takapuna precinct at Tenancy T1E-B, 4 Fred Thomas Drive. Offering approximately 214sqm plus a share of common areas, this space presents a compelling opportunity for hospitality operators to establish themselves in a high-growth location undergoing significant redevelopment.
The tenancy will be delivered in a warm shell condition, providing flexibility to tailor the fit-out to your brand and operational needs. With key infrastructure in place including three-phase power, extraction provisions, and an open-plan layout supported by fire and emergency systems, the space is well-prepared for a range of food and beverage concepts.
Enhanced by new façade upgrades, including an automatic entry and provision for a bi-fold or similar opening frontage, the tenancy is designed to maximise street appeal and indoor-outdoor flow. Positioned within a curated retail environment and supported by shared customer parking, this is a strong opportunity to secure a presence in an evolving and well-connected Takapuna location.