JLL is excited to present to the market for lease, 197 Great South Road, Takanini.
Located on Great South Road in the center of Takanini's bustling commercial/industrial hub, this property is currently undergoing a full refurbishment ready for completion 1st October 2025. This complex delivers exceptional visibility with the 26,000 cars passing daily.
Perfect for retail, warehousing, showrooms and offices. Situate your business among the a multitude of national branded tenants that include Bunnings, Mitre10, NZ Safety, Resene’s, Woolworths, PAK’nSAVE, Animates, Repco and many more.
Positioned 1.2km from the Takanini motorway and 700m from the train station, this provides added ease for customers and staff.
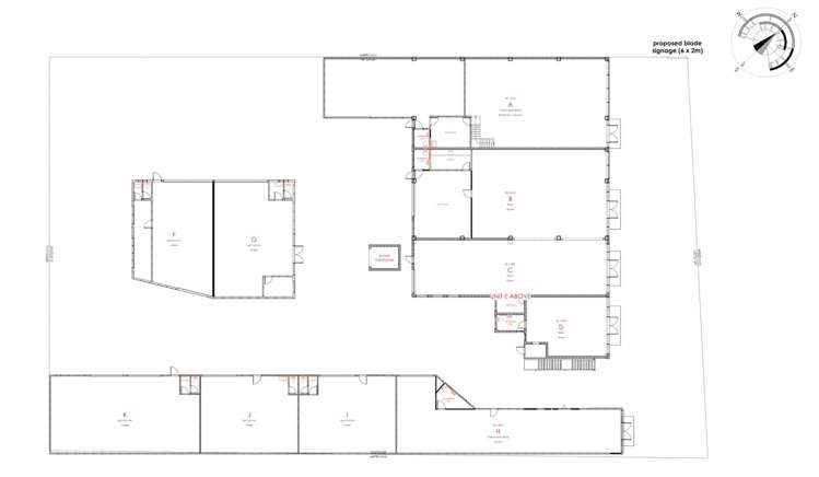
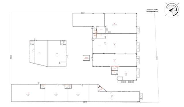
Tenancy breakdowns:
- Unit A (Retail): 259m²
- Unit B: Leased to National branded retail tenant
- Unit C: Leased to National branded retail tenant
- Unit DL (Retail): 60m²
- Unit E (First floor office): 181m²
- Units F & G (Showroom/office/warehouse): 190m²
- Units H & I (Retail): 130m²
- Unit K (Showroom/office/warehouse): 80m²
Contact us now to schedule a viewing.
Steven Harris
021 187 8769
[email protected]