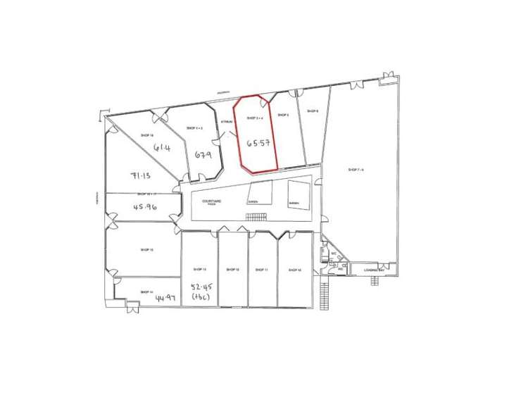
JLL is pleased to present to the market for lease Shop 3 & 4, 282 Ponsonby Road, Ponsonby.
Key features
* Premium front entrance corner location at All
Saints Shopping Centre
* 50.77sqm GF with 14.8sqm mezzanine
* Tidy retail store with small mezzanine floor
* Car Parking options available at additional cost
* Available November 2025 or earlier by mutual
agreement
* Suitable for various boutique retail uses
For more information regarding this property, or to arrange a viewing - please contact your JLL retail specialists.