A rare opportunity to secure a premium building in a highly sought after Penrose location. 860 Great South Road is a modern, high-quality facility in the heart of Auckland's industrial precinct. Strategically positioned on a 4,893 sqm site and bordered by both Great South Road and the Southern Motorway (SH1), this property offers exceptional accessibility, profile, and functionality, all within a highly sought-after Business - Heavy Industry Zone.
Property highlights include:
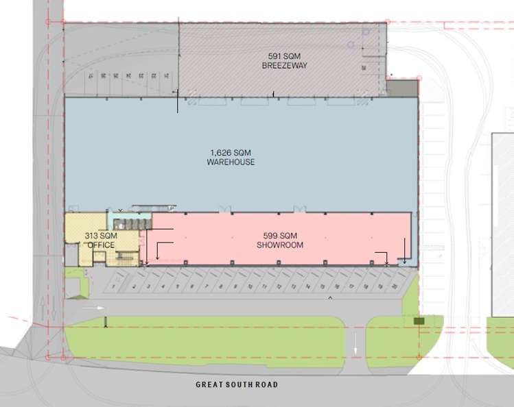
- Warehouse: 1,626 sqm (high stud, currently fully racked - negotiable)
- Fully covered drive-through breezeway: 591 sqm
- Trade showroom: 599 sqm (current tenant may retain this space)
- Two-level office and amenities: 313 sqm
- Mezzanine storage: 618 sqm
- Terrace: 24 sqm
- 28 on-site carparks
Constructed in 2023 to a high-quality finish, the building delivers excellent operational efficiency, layout, and presentation. Its location provides outstanding connectivity - only 400 m to SH1, 3.4 km to Sylvia Park Shopping Centre, 11.3 km to Auckland CBD, and 13.8 km to Auckland Airport. This premium Penrose property offers the ideal combination of visibility, access, and modern functionality - a rare find in today's market.
Not what you're looking for? Get in touch and I'll run you through a number of similar available options.
Contact the agent at NAI Harcourts for full information and to arrange a viewing.