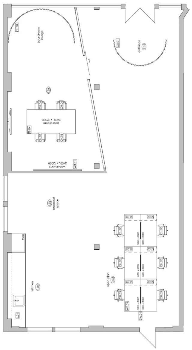
Available for lease now is this 167 sqm of character office space within this iconic building at 125 The Strand.
Featuring a mix of wooden floors, high stud with skylights and exposed brick this beautifully presented space is one of a kind. Fully fitted with a glass boardroom, a private kitchen facility and breakout space, with the remainder of the floor as open plan workspace, an incoming tenant can enjoy the benefits of a turn key solution.
The property has great access to main arterial routes and motorway onramps leading across the city. With an onsite cafe and ample car parking options, there is a lot to love about this space.
Being located on The Strand also has several benefits including a minute walk to St Georges Bay Road, leading to Parnell Road. In recent years, the area has developed considerably, with the likes of Xero's new head office at 96 St Georges Bay Road and refurbishment of the surrounding amenity, with ample boutique cafes, eateries and bars coming online. Make a statement with your business and occupy within this iconic property.
To view this space, find out more information or to discuss alternative options available in the market, get in touch with Hugo Findlay on 027 945 3535 or Charlie Stow on 021 812 559. Colliers look forward to assisting your requirement.
Features:
* Available now
* Fitted Character Space
* Sought after location
* Desirable nearby amenity
* Ample onsite car parks