- 30 Bellbird Street

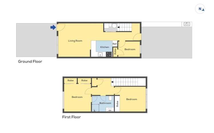
Floorplan

+11
Pictures11
Floorplan2
Map
Data
Property data
Broadband available
Floor area
86m²
Land area
108m²
Unitary Plan
Zone 18 Residential - Mixed Housing Suburban Zone
About the area

Papakura, Papakura
Papakura is a suburb which lies within the Territorial Authority of Auckland, one of 269 residential suburbs which form the wider region. Papakura is the 10th largest suburb of Auckland in terms of the total number of residential housing stock.
Papakura provides a range of housing stock, with the earliest residential housing recorded in the area constructed between 1880 - 1889. The majority of the residential housing stock in the locality was constructed between 1960 - 1969.
Residential housing stock in Papakura is made up of approximately 94% residential housing , 3% residential investment housing and 3% lifestyle properties.
Learn moreADVERTISEMENT
Similar properties for rent





















