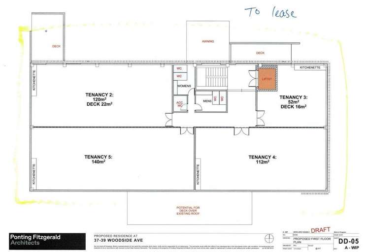
We are seeking health and wellness operators to secure purpose-built tenancies ranging from 78m² to 160m² (approximately) within a newly established health and wellness hub in Northcote.
Positioned centrally to significant residential catchments and offering quick access to the Northern Motorway, this location provides excellent exposure to a strong and growing customer base. The property also benefits from immediate proximity to the newly opened All Care Medical Centre.
The existing on-site mix of medical and health-related occupiers includes a dental practice, hair transplant clinic, pharmacy, and specialist hand physiotherapy, creating a well-established and complementary health precinct.
With 26 Kawana Street now completed and operational, the adjoining corner site at 37–39 Woodside Avenue is currently being transformed, with the renovations due in the coming months, we are seeking interest from the vast range of health, wellness and medical practitioners that will want to benefit from purpose-built tenancies, ready to go within the first half of 2026.
Now is an ideal time to inspect the property. Please contact us for further information or to arrange a private viewing.
KEY FEATURES:
• Brand-new purpose-built health and wellness tenancies
• Areas available from 78m² to 160m² (approximately)
• Established medical and allied health precinct
• Immediate proximity to All Care Medical Centre
• Strong surrounding residential catchment
• Easy access to the Northern Motorway
• High-profile corner location (Woodside Avenue / Kawana Street)
• Completion of additional tenancies due in the coming months
See this listing on Barfoot & Thompson