Colliers is pleased to present 248 Broadway, Newmarket, available for lease.
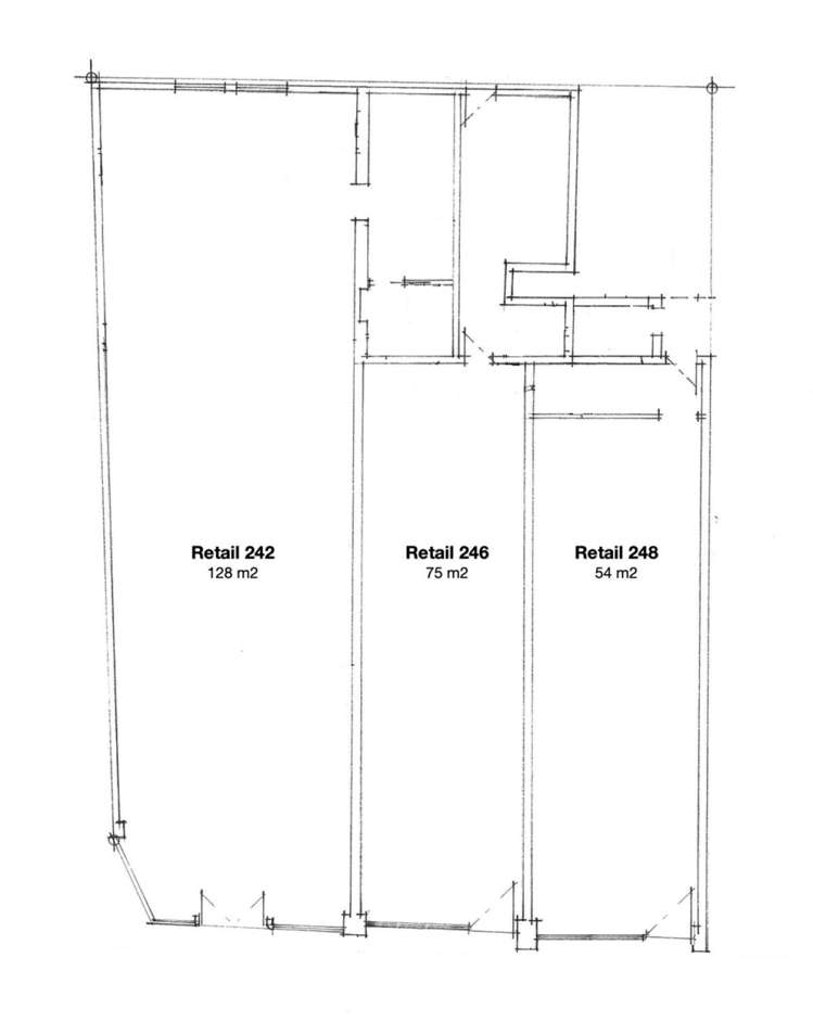
The tenancy comprises approximately 54sqm of retail area, positioned along Broadway, Newmarket’s primary retail strip. The location benefits from consistent pedestrian flow and strong exposure to passing traffic.
The space is well presented and features timber flooring, neutral wall finishes, and a full glass frontage, providing good natural light and clear street visibility. The layout is efficient and includes a rear storage room and private bathroom, supporting day‑to‑day retail operations.
The tenancy is located within Newmarket’s established retail precinct and is surrounded by a mix of national and boutique retailers. It benefits from proximity to Teed Street, Westfield Newmarket, and key transport connections, including bus routes and the Newmarket Train Station.
Key Features
- 54sqm boutique retail tenancy
- Prime Broadway frontage with strong pedestrian activity
- Full glass frontage ideal for branding and product display
- Rear storage and private bathroom
- Surrounded by established national and boutique retailers
For further information or to arrange a viewing, contact:
- Helen Hollis +64 21 592 132
- Danielle McLaughlin +64 21 029 91107
Features:
* Blonde oak timber floors
* Barely beige painted walls
* High exposure high foot-traffic location
* Crisp shell interior
* Available now!