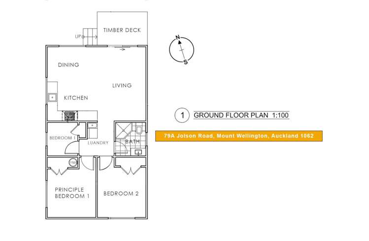
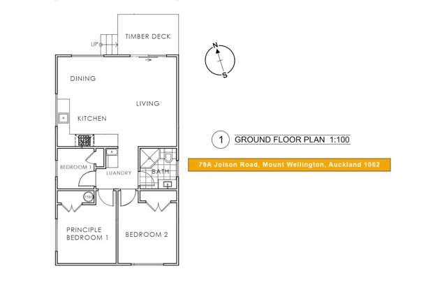
- 79A Jolson Road



Mount Wellington is a suburb within Auckland’s Territorial Authority, it is one of 269 residential suburbs in the region and ranks as the 11th largest suburb by total housing stock.
While its oldest homes date back to the 1880s, most of the residential housing in Mount Wellington was built in the 1950s. Approximately 95% of Mount Wellington’s housing stock consists of owner-occupied residential properties, while the remaining 5% are investment properties.
Mount Wellington is home to several notable amenities and landmarks, including the scenic Panmure Basin, Mount Wellington Domain and Sylvia Park, one of New Zealand's largest shopping centres. The suburb offers convenient access to Auckland CBD proving to be a great location for a diverse range of residents, from growing families to frequent commuters.
Find properties for sale in Mt Wellington

























