- 9 Memory Lane

Floorplan

+18
Pictures18
Floorplan1
Map
Data
Property insights
OneRoof estimate
OneRoof mentions
Listed for sale on OneRoof for 3 days (last updated on 8 April). OneRoof now estimates this property to be $1,960,000 and its latest rating valuation by Rodney council is $1,975,000 as of 2024. There are 32 4-bedroom properties for sale nearby. There are 102 properties for sale in Millwater.
Similar properties for sale
Property data
On OneRoof
2 days
Property Type
House
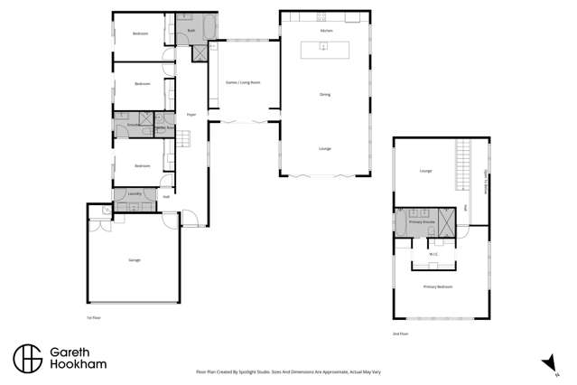
Floor Area
297m²
Land Area
600m²
About the area
Market insights
Insights for all bedroom homes in Millwater
Property type
All property types
Bedrooms
All
Time (yrs)
5 yrs
Home services
Fortnightly Repayments
Loan term
Total interest
Interest rate
Total cost
Press calculate to work out your mortgage repayments and how quickly you can pay off your loan.


On your side with these great benefits
Natural disaster cover for earthquakes, natural landslips, hydrothermal activity, tsunami, natural fires, & volcanic activity.
Temporary accommodation for you, your family, and your pets if you need to be evacuated from your home.
Get replacement keys and locks if yours get lost or stolen and pay no excess.
Access to AMI HomeHub, our first-class home repairer that brings together a team of experts to take care of your home claim repairs from start to finish.
Learn about these great benefits and more
*Exclusions and limitations apply. Talk to us about these or refer to the full policy document which can be found on our website.

Millwater, Rodney
Learn moreADVERTISEMENT






























