- 86A Kelman Road

Floorplan

+19
Pictures19
Floorplan1
Map
Data
Property insights
OneRoof estimate
OneRoof mentions
Listed for sale on OneRoof for 299 days (last updated on 6 May) and was last sold in 2020 for $885,000. OneRoof now estimates this property to be $970,000 and its latest rating valuation by Waitakere City council is $990,000 as of 2024. This property has appeared in 3616 searches in the last 30 days. There are 7 4-bedroom properties for sale nearby. There are 31 properties for sale in Kelston.
Similar properties for sale
Property data
Time On OneRoof
298 days
Type of title
Freehold
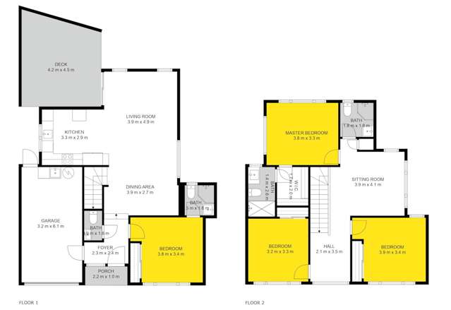
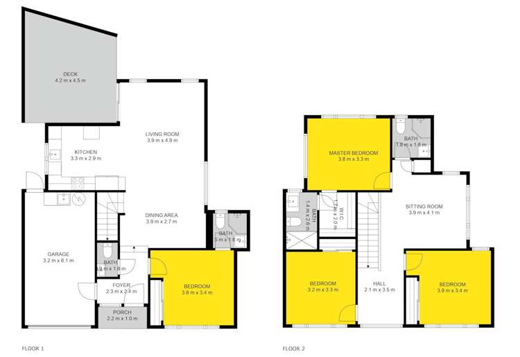
Floor area
167m²
Land area
260m²
About the area
Market insights
Insights for all bedroom homes in Kelston
Property type
All property types
Bedrooms
All
Time (yrs)
5 yrs
Home services
Fortnightly Repayments
Loan term
Total interest
Interest rate
Total cost
Press calculate to work out your mortgage repayments and how quickly you can pay off your loan.


On your side with these great benefits
Natural disaster cover for earthquakes, natural landslips, hydrothermal activity, tsunami, natural fires, & volcanic activity.
Temporary accommodation for you, your family, and your pets if you need to be evacuated from your home.
Get replacement keys and locks if yours get lost or stolen and pay no excess.
Access to AMI HomeHub, our first-class home repairer that brings together a team of experts to take care of your home claim repairs from start to finish.
Learn about these great benefits and more
*Exclusions and limitations apply. Talk to us about these or refer to the full policy document which can be found on our website.

Kelston, Waitakere City
Kelston is a suburb which lies within the Territorial Authority of Auckland, one of 269 residential suburbs which form the wider region. Kelston is the 125th largest suburb of Auckland in terms of the total number of residential housing stock.
Kelston provides a range of housing stock, with the earliest residential housing recorded in the area constructed between 1910 - 1919. The majority of the residential housing stock in the locality was constructed between 1960 - 1969.
Residential housing stock in Kelston is made up of approximately 91% residential housing and 9% residential investment housing properties.
Learn moreADVERTISEMENT

































