Open homes available to book through the Bookme: https://www.tpsportal.co.nz/ebundle/bookme/viewings
Welcome home! This modern corner townhouse combines contemporary elegance with ultimate convenience, perfectly positioned in vibrant Howick.
Property Highlights:
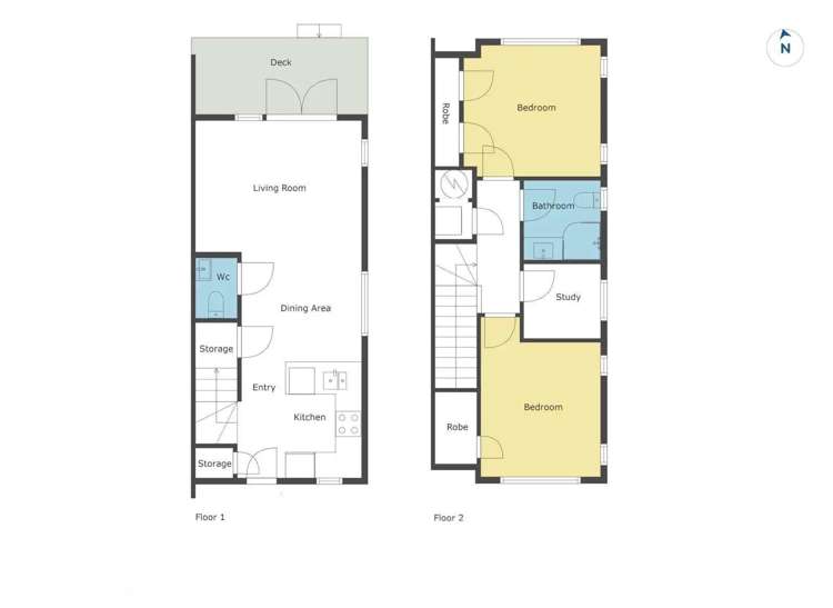
• Versatile Living Spaces - Two spacious bedrooms plus a bright study room, perfect for families, professionals, or multifunctional use.
• Modern Amenities - Separate downstairs toilet and a sleek combined bathroom upstairs designed for modern living.
• Indoor-Outdoor Flow - Open-plan kitchen, dining, and living areas flow seamlessly onto a sun-drenched, fenced garden, perfect for alfresco entertaining.
• Convenient Parking - Dedicated onsite car park adjacent to the house for hassle-free access.
Location Benefits:
• Walking distance to in-zone schools including Owairoa Primary School, Howick Intermediate, and Howick College.
• Close to Howick Village, with local boutiques, eateries, and recreational facilities at your doorstep.
This property perfectly balances modern comfort, lifestyle convenience, and family-friendly functionality-an ideal home for those seeking space, style, and a vibrant community.
No smoker
Application Link - https://www.tpsportal.co.nz/tenancy_application/tps1562
Attention Tenants: Beware of Rental Scams - We want to bring to your attention the growing number of rental scams that are targeting tenants through fake rental listings on social media platforms. To help ensure you stay safe, please note that all communication regarding tenancy applications, offers, and requests for tenancy agreements will only come from a verified email address associated with @raywhite.com. We advise tenants to verify the authenticity of rental listings and to be cautious of communications or emails that are not connected to @raywhite.com. If you have any doubts or concerns about a listing, please call the Ray White property manager directly.