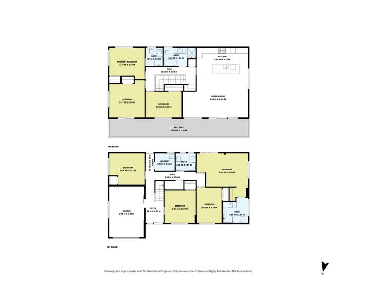
Welcome to your new home in Henderson, Auckland! This spacious 7-bedroom, 4-bathroom house offers plenty of room for family, friends, or even a home office setup. Spread across two comfortable storeys, this property combines ample space with a warm, inviting atmosphere.
Key features you'll love
- Seven generous bedrooms, two with ensuites, perfect for a growing family or extra hobbies.
- Four well-equipped bathrooms in total, ensuring convenience for everyone
- A secure single garage plus two additional off-street parking spaces, ideal for multiple vehicles or guests
- Thoughtful two-storey layout providing privacy and flow throughout the home
Located in the friendly Henderson neighborhood, this home offers easy access to local amenities, schools, parks, and transport links, making daily life a breeze.
This is a fantastic opportunity to enjoy spacious living in a great community.
Ready to make this house your new home? Contact us today to arrange a viewing. We can’t wait to welcome you!
Move in costs: 1 week's rent, 4 week's bond.
Viewings:
If you would like to book a viewing, simply copy and paste the following link into your browser: https://bookme.tenant.co.nz/tps1384
Alternatively, on Trade Me click the blue “Email Enquiry” tab. You will receive an automatic reply from TPS containing a “Make a booking” link. Click that link to view available times and register for a viewing.
Landlords:
LJ Hooker provide free rental appraisals and a comprehensive property management service delivered by highly experienced property managers. Our team is always available to discuss legislative changes that may impact you, such as requirements around Healthy Homes standards and the latest Pet Law Changes. Please call Rachel McKay 020 4007 9414
Beware of scams! LJ Hooker will never ask for money upfront. Viewings are always conducted with staff carrying ID and driving sign‑written vehicles. A tenancy agreement will be provided before any payment is collected. If in doubt, visit our branch directly.