K’Road has long been known for it’s buzzing nightlife, top restaurants/cafes and strong mix of retail offerings. This is an excellent central Auckland position for any business with only a short drive to the heart of the CBD and just a short walk from Ponsonby Road. CRL infrastructure is also underway.
Key features:
* Suitable for various food and beverage operators
* Includes 10 car parks at rear
* Premium exposure onto K Road and busy intersection
* Modern building with great signage options
* High foot traffic location in established dining precinct
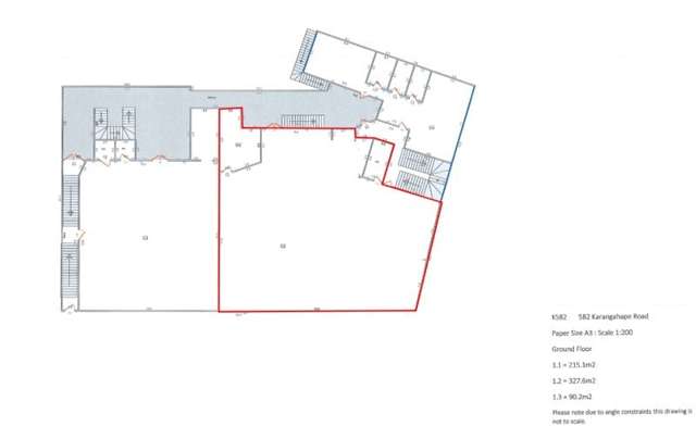
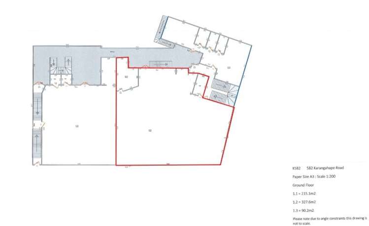
* Flexible floor plan to accommodate various layouts
* Surrounded by complementary retail and hospitality businesses
For more information regarding this opportunity, get in touch with your retail specialists below.