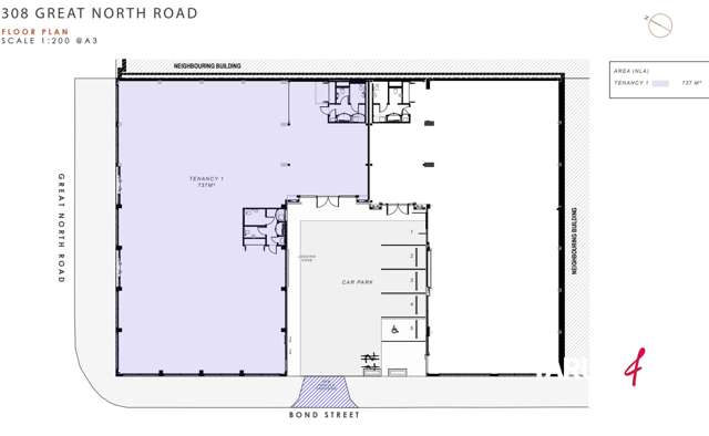
NAI Harcourts is pleased to offer this high-profile commercial space for lease at 308 Great North Road, Grey Lynn. Newly designed and prominently positioned, this expansive 737sqm property provides an outstanding opportunity for businesses seeking maximum exposure in one of Grey Lynn's best locations.
Property Features:
• 737 sqm of newly designed commercial space
• High-profile location with exceptional visibility
• 2 on-site car parks included in the rental
• Prime position in the heart of Grey Lynn
• Excellent vehicle and pedestrian traffic
Available 1st June 2026
Situated on Great North Road, the property benefits from high daily traffic, strong local presence, and easy access to surrounding amenities, making it ideal for retail, showroom, or commercial operators.
Contact Tarun at 0224547881 or Raj 027 687 5638 today to arrange a viewing or discuss this prime opportunity.