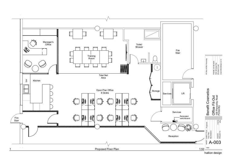
Position your business in one of Auckland’s most sought-after locations. The ground floor office space at 100 Ponsonby Road offers a functional layout with a predominantly open-plan area, complemented by a boardroom and private office.
With great access to public transport, motorway links, and the vibrant mix of cafes, restaurants, and retail that Ponsonby is known for, this location offers both convenience and prestige. Its central position makes it an excellent choice for businesses looking to attract clients and staff alike in a highly desirable commercial hub.
Features:
- 116.22 sqm of office space (more or less)
- Secure parking on-site
- Ground floor
- Predominantly open-plan
- Board room & office
- Kitchenette
- Private bathroom & shower
We have a number of other listings to fulfil any requirement, please feel free to get in touch with the listing agent.
Nathan Burns
M: 027 595 0477
E: [email protected]