Exciting new commercial premises are coming available to the market in Grafton with an expected completion date of Q4 2026.
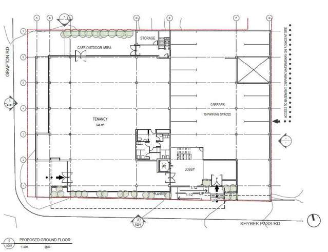
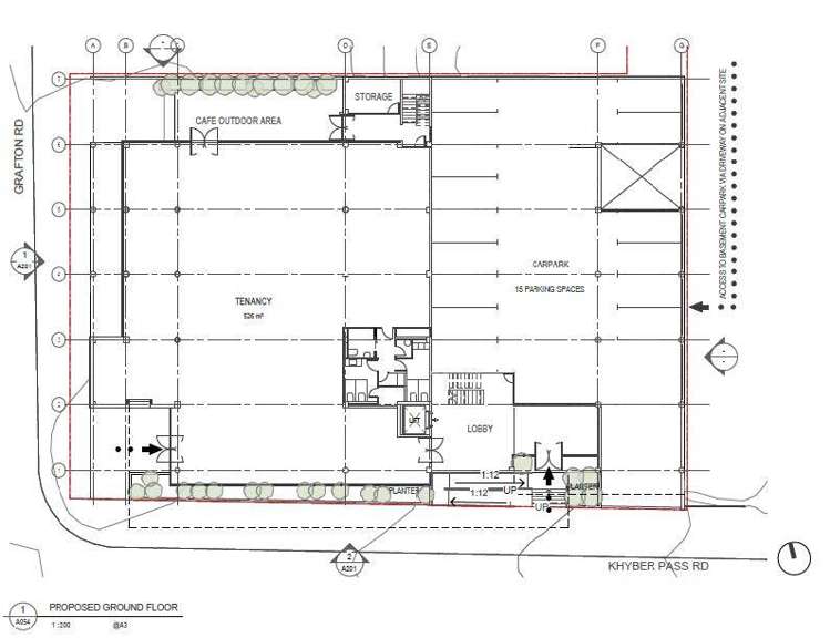
The existing building is being stripped back to bare concrete, and the new owners will be completing a full refurbishment, including an all-new external facade as per the attached renders. There are 64 on-site car parks, with plenty more available nearby.
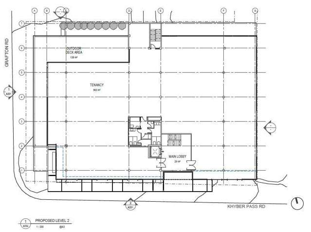
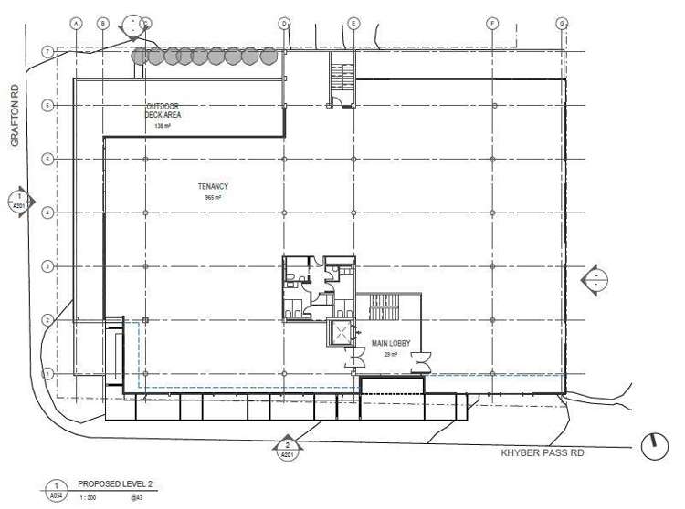
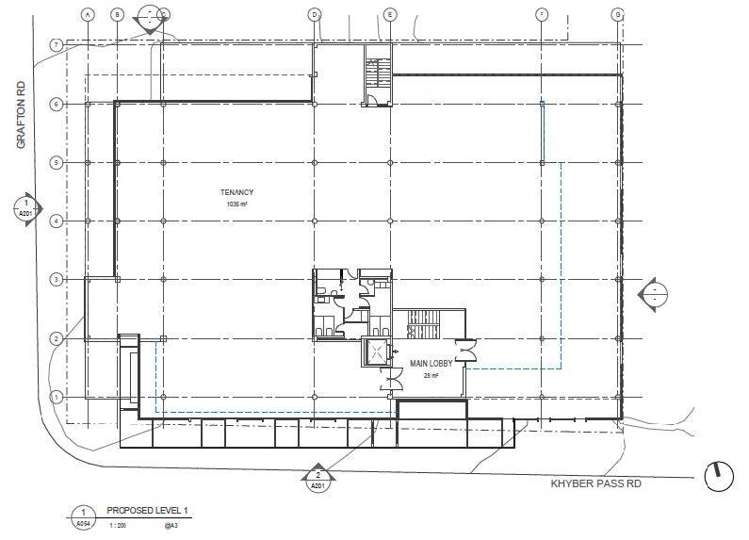
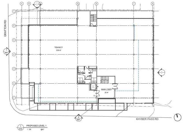
The building is made up approximately as follows:
• Ground floor - 611m²
• Level 1 - 1,050m²
• Level 2 - 1,050m²
• Total - 2,711m²
The landlord is keen to work with interested tenants before refurbishment begins, allowing you to integrate your fitout requirements into the upgrade.
Positioned on the corner of Grafton Road and Khyber Pass Road, this property offers excellent signage exposure and convenient access to train stations, major bus routes, and multiple motorway links. It’s also less than five minutes from Grafton Hospital, making it an ideal option for medical tenants.
For more information, please contact the listing agent.
See this listing on Barfoot & Thompson