- M/33 New North Road


+19
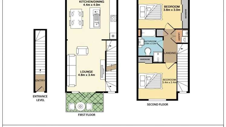
Pictures19
Map
Data
About the area

Eden Terrace, Auckland City
Eden Terrace is a suburb which lies within the Territorial Authority of Auckland, one of 269 residential suburbs which form the wider region. Eden Terrace is the 104th largest suburb of Auckland in terms of the total number of residential housing stock.
Eden Terrace provides a range of housing stock, with the earliest residential housing recorded in the area constructed between 1880 - 1889. The majority of the residential housing stock in the locality was constructed between 2000 - 2009.
Residential housing stock in Eden Terrace is made up of approximately 98% residential housing and 2% residential investment housing properties.
Learn moreADVERTISEMENT
Similar properties for rent


























