Unfurnished house, but it comes with two fridges.
Video link
https://youtu.be/zjOB8XajVHc
Interested applicants may complete the following application form if they wish to apply for tenancy (optional before viewing):
https://forms.gle/37kK4sN3SuqMQrNx7
Features:
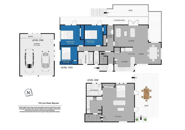
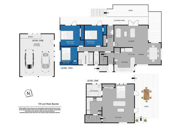
4 Bedrooms, ( or 3 Bedroom + 1 Rampus Room )
2 Bathrooms,2 Toilets
Built-In Wardrobes
Close To Schools
Close To Shops
Close To Transport
Double Garage
Garden with Paths through scenic reserve
Location + Zoning
- Easy walking distance and in-zone to Bayview Primary (Decile 7) plus a choice of Kindy's
- Just across the road from the popular Lynn reserve fields, playground and bike tracks
- 1 minute to the local bus stop (which frequently runs to the CBD)
- 5 minutes from Glenfield Mall
Upper Floor
- 3 bedrooms - all with built in wardrobes
- 1 bathroom with bathtub and shower
- Open plan living
- Flow from lounge and bedrooms to wrap around decking overlooking the reserve
- Stairs providing access to lower floor living
Lower Floor
- Full Bathroom
- Open plan studio-style living area with kitchenette
- French doors leading to private decking and gardens
- Ideal for parents, extended family and homestays!
- Potential to self-contain with private access
Exterior
- Freestanding double garage + Expansive parking
Large lawned gardens surround the home featuring a plethora of fruit trees and organically grown herbs and vegetables
Features: Heating, Garden, Fully-fenced, Deck, Courtyard, Built-in wardrobe, Balcony, Alarm, Air conditioning, Healthy Homes compliant
TENANTS: To apply or schedule a viewing please click the email button to contact the landlord directly.
LANDLORDS: myRent.co.nz provides a cheaper solution to get your property in front of more potential tenants. We also offer property management for just $19/month.