Key Features:
• Approx. 322sqm total floor area – occupy the whole floor yourself
• Well balanced layout with open-plan workspace & multiple meeting rooms
• Professional reception area providing a welcoming client-facing entry
• Private kitchen, amenities, and storage conveniently included
• Nine secure on site car parks - a rare and highly practical benefit in the city fringe
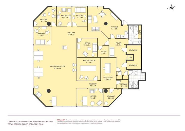
Positioned in the vibrant city-fringe precinct of Eden Terrace, this 322sqm full-floor office offers a functional and efficient workspace suited to a range of business types, available for immediate occupation.
The layout is thoughtfully configured to support both collaborative work and private meetings, making it ideal for established teams looking for a practical office environment that can be moved into right away.
The floor includes a mix of open-plan workspace, private offices, meeting rooms, and a boardroom, allowing flexibility for team desks, management offices, and client discussions. A dedicated reception area provides a professional arrival point for visitors, while internal circulation ensures easy movement throughout the workspace.
Future staff benefit from on-floor amenities including a kitchen, bathrooms, and storage, creating a comfortable and self-contained working environment. Additionally, 9 secure, on-site car parks offer convenience for both staff and visiting clients - a significant advantage in this sought-after city fringe location.
Located on Upper Queen Street, the property sits just minutes from Auckland's CBD, with convenient access to public transport, key arterial routes, and a wide range of nearby cafes and amenities.
Contact the leasing agent today to arrange an inspection or discuss how this distinctive workspace could support your business.
Agent details;
Eddie Pippos
021 0257 6246
[email protected]