Available for lease from 1 June 2025 is this high quality office space with fantastic natural light and views east over Shortland Street.
The Shortland Centre has been thoroughly upgraded with an expansive foyer and lobby, end of trip facilities (showers, change rooms & bike rakes). Also, the podium level garden has been completely remodelled providing an incredible open space sitting above the hustle and bustle of Shortland Street.
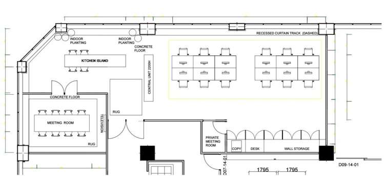
This high end fit is still in immaculate condition and includes:
- Waiting & informal meeting area
- Timber-lined Boardroom
- Open plan with inbuilt cabinetry/storage
- Small meeting room
- Kitchenette
The exiting tenant will also look to leave/sell the furniture that is currently in place.
To view the space or for further information please contact Kendall Grey on 021 373 726 or Devon Grantley-Hogg on 021 117 2553. Colliers look forward to assisting with your requirement.
Features:
* Available 1 June 2025
* High-end existing fit out
* Furniture available for purchase