Level 3 (310sqm), 33 Federal Street is one not to be missed - Available now.
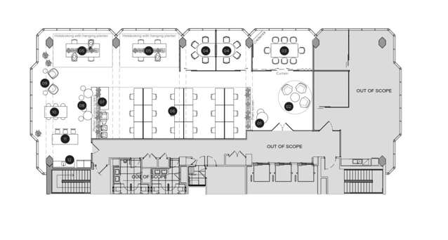
Industrial styled fit out includes Waiting area, boardroom, 2 x meeting rooms, large kitchen/breakout and open plan for 30+ staff.
33 Federal Street's redevelopment provides premium access to the best of Auckland's CBD. Nestled perfectly between Albert and Queen Street and the Victoria/Wynyard Quarters, it has excellent access to the main arterial routes.
The refurbishment of this building enhances a modern industrial feel, creating a vibrant and modern working environment for all tenants. The unbeatable positioning of this building will only get better towards the completion of the City Rail Link.
Excellent on-site amenities includes Daily Bread Artisan Bakery and on-floor end-of-trip facilities.
For further information or to arrange a viewing please contact Devon Grantley-Hogg 021 176 2533 or Kendall Grey on 021 37 37 26.
Features:
* Quality industrial-style fit out
* Secure on-site car parking
* End-of-trip facilities
* Daily Bread Artisan Bakery