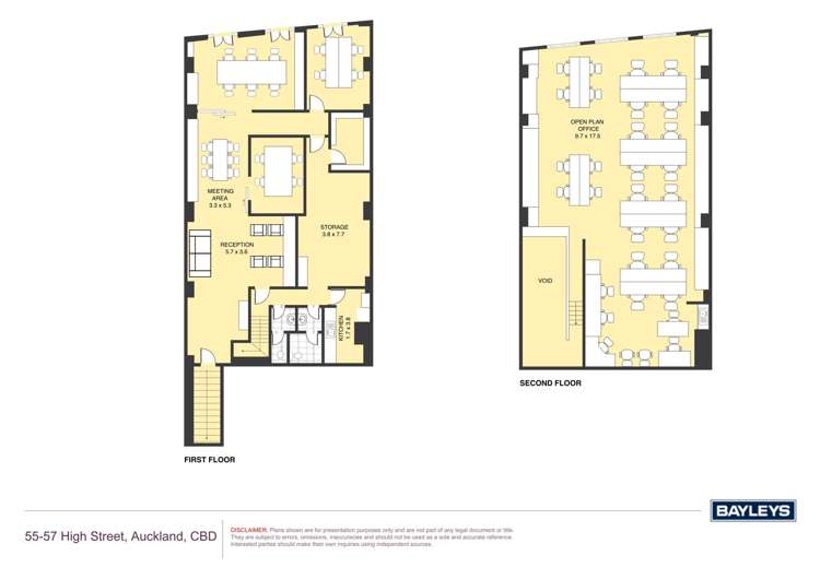
- 305sqm (approx.) character space with mezzanine
- High-stud ceilings and excellent natural light
- Quality existing fit-out - near turnkey
- Vacant possession
- Business - City Centre zoning
- Premium CBD location with unmatched amenity
2Q, 55-57 High Street presents a rare opportunity to secure a refined character workspace with genuine flexibility.
Comprising approximately 305sqm, this architecturally appealing space features impressive stud heights, a mezzanine level, and large windows capturing an outlook toward Queen Street. Previously home to Buchan Group Architects for over 20 years, the tenancy offers a high-quality existing fit-out, providing an almost turnkey solution for owner-occupiers or investors alike.
Set within the well-known Met & Soho complex, the property benefits from a vibrant mixed-use environment, surrounded by established retail, office, and residential occupiers. The location is second to none - just moments from Queen Street, Commercial Bay, Britomart Transport Hub, and the upcoming Aotea CRL station, ensuring long-term accessibility and connectivity.
With Business - City Centre zoning, the opportunity extends beyond traditional office use, allowing for potential retail or residential conversion (subject to consent), making this a compelling add-value proposition.
Opportunities with this character and versatility, in such a prime CBD position, are increasingly scarce. Whether you are an owner-occupier, investor, or repositioning buyer, this is a property worthy of serious consideration.