- 17 Alexander Court
Last sold: Jan 2017


+22
Pictures
Map
17 Alexander Court, Pukekohe, Franklin
Last sold Jan 2017
Property insights
OneRoof estimate
OneRoof mentions
This property was last sold in 2017 for $820,000. OneRoof now estimates this property to be $995,000 and its latest rating valuation by Franklin council is $980,000 as of 2024. There are 360 properties for sale nearby. More property estimates in Pukekohe are available.
Similar properties for sale
Property data
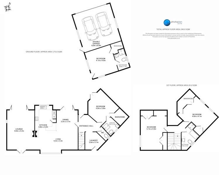
Floor Area
237m²
Land Area
3,200m²
Decade Built
1990s
Title
Freehold
ADVERTISEMENT
Get a free, no obligation appraisal from our top agents today
About the area
Market insights
Insights for all bedroom homes in Pukekohe
Property type
All property types
Bedrooms
All
Time (yrs)
5 yrs
Home services
Fortnightly Repayments
Loan term
Total interest
Interest rate
Total cost
Press calculate to work out your mortgage repayments and how quickly you can pay off your loan.


On your side with these great benefits
Natural disaster cover for earthquakes, natural landslips, hydrothermal activity, tsunami, natural fires, & volcanic activity.
Temporary accommodation for you, your family, and your pets if you need to be evacuated from your home.
Get replacement keys and locks if yours get lost or stolen and pay no excess.
Access to AMI HomeHub, our first-class home repairer that brings together a team of experts to take care of your home claim repairs from start to finish.
Learn about these great benefits and more
*Exclusions and limitations apply. Talk to us about these or refer to the full policy document which can be found on our website.

Pukekohe, Franklin
Pukekohe is a suburb which lies within the Territorial Authority of Auckland, one of 269 residential suburbs which form the wider region. Pukekohe is the 8th largest suburb of Auckland in terms of the total number of residential housing stock.
Pukekohe provides a range of housing stock, with the earliest residential housing recorded in the area constructed between 1900 - 1909. The majority of the residential housing stock in the locality was constructed between 2000 - 2009.
Residential housing stock in Pukekohe is made up of approximately 96% residential housing , 2% residential investment housing and 2% lifestyle properties.
Learn moreADVERTISEMENT



































