- 204 Remuera Road
Last sold: Jun 2023


+23
Pictures
Map
204 Remuera Road, Remuera, Auckland City
Last sold Jun 2023
Property insights
Rating valuation
OneRoof mentions
This property was last sold in 2023 for $7,100,000. Its latest rating valuation by Auckland City council is $5,900,000 as of 2024. There are 215 properties for sale nearby. More property estimates in Remuera are available.
Similar properties for sale
Property data
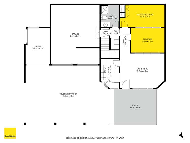
Floor Area
422m²
Land Area
776m²
Decade Built
1970s
Title
Freehold
ADVERTISEMENT
Get a free, no obligation appraisal from our top agents today
About the area
Market insights
Insights for all bedroom homes in Remuera
Property type
All property types
Bedrooms
All
Time (yrs)
5 yrs
Home services
Fortnightly Repayments
Loan term
Total interest
Interest rate
Total cost
Press calculate to work out your mortgage repayments and how quickly you can pay off your loan.


On your side with these great benefits
Natural disaster cover for earthquakes, natural landslips, hydrothermal activity, tsunami, natural fires, & volcanic activity.
Temporary accommodation for you, your family, and your pets if you need to be evacuated from your home.
Get replacement keys and locks if yours get lost or stolen and pay no excess.
Access to AMI HomeHub, our first-class home repairer that brings together a team of experts to take care of your home claim repairs from start to finish.
Learn about these great benefits and more
*Exclusions and limitations apply. Talk to us about these or refer to the full policy document which can be found on our website.

Remuera, Auckland City
Remuera is a suburb which lies within the Territorial Authority of Auckland, one of 269 residential suburbs which form the wider region. Remuera is the 5th largest suburb of Auckland in terms of the total number of residential housing stock.
Remuera provides a range of housing stock, with the earliest residential housing recorded in the area constructed between 1800 - 1809. The majority of the residential housing stock in the locality was constructed between 1990 - 1999.
Residential housing stock in Remuera is made up of approximately 97% residential housing and 3% residential investment housing properties.
Learn moreADVERTISEMENT





































