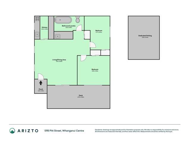
- 59B Pitt Street


Listed for sale on OneRoof for 47 days (last updated on 5 March) and was last sold in 2023 for $225,000. OneRoof now estimates this property to be $290,000 and its latest rating valuation by Whanganui council is $280,000 as of 2025. There are 8 2-bedroom properties for sale nearby. There are 27 properties for sale in Whanganui Centre.



Whanganui Central is one of the 28 residential suburbs in the Whanganui region and ranks as the 5th largest suburb by housing stock.
The suburb’s oldest homes date back to the 1880s, while most residential properties were built in the 1910s. Approximately 94% of Whanganui Central’s housing stock is owner-occupied, with the remaining 6% made up of investment properties.
While Whanganui’s population is smaller and more localised, it is growing in popularity as people seek more affordable and laid-back living options outside of the major urban centres. Key landmarks include The Royal Whanganui Opera House, Whanganui Regional Museum and Queen’s Park. Most notably, New Zealand’s third-longest river, the Whanganui River runs directly through the city.
Find properties for sale in Whanganui Central































