Level 4 Tenancy 1 at Grant Thornton House offers a high-quality, landlord-provided turn-key office suite within one of Wellington CBD’s most prominent commercial buildings.
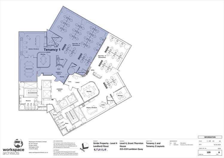
The tenancy comprises approximately 353 m² and is delivered unfurnished, featuring a kitchen and breakout area, a large boardroom, meeting room/office and a mix of three focus rooms plus open plan designed to support collaborative and focused work styles for over 20 staff. Refurbished on-floor bathrooms and a modernised common area lobby further enhance the overall presentation.
Situated at 215 Lambton Quay, the building occupies a prime position on Wellington’s Golden Mile, with excellent access to public transport, close proximity to the Railway Station and convenient connections to the government precinct and waterfront. Occupying a prominent corner site, the building benefits from exceptional natural light and views. Grant Thornton House is a well‑known landmark office tower that has undergone significant refurbishment, providing a professional and contemporary workplace environment.
This tenancy will appeal to professional services firms, advisory businesses, and corporate occupiers seeking a central CBD location with a ready-to-occupy fit-out. The flexible layout supports boardroom-style meetings, team collaboration, and private focus areas, making it ideal for businesses wanting to establish or upgrade their Wellington presence.
Please note all areas and values are approximate only.
For further information or to arrange an inspection contact:
Jeremy Langford on 021 278 0700 or email [email protected]
Steve Maitland on 021 726 200 or email [email protected]
Features:
* Turnkey landlord fit-out
* A Grade office building
* Central Lambton Quay address
* Large boardroom
* Meeting rooms and private focus areas
* New end-of-trip facilities
* Ground floor cafe