- 102 Martin Street

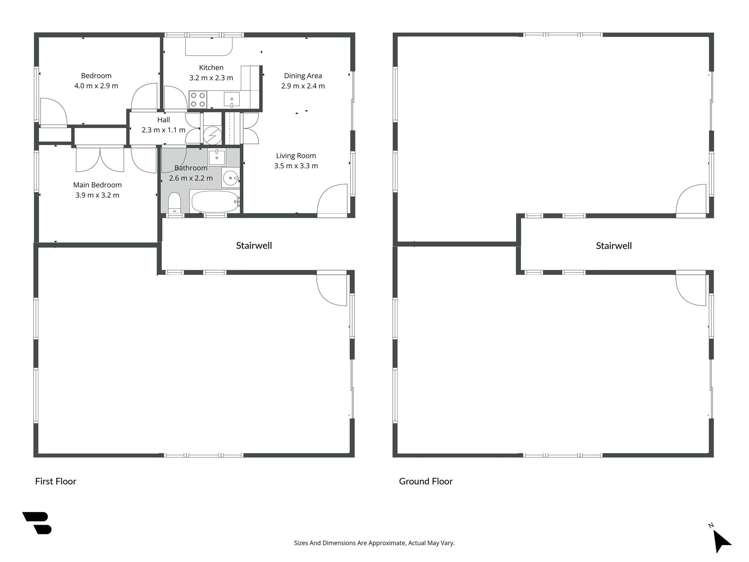
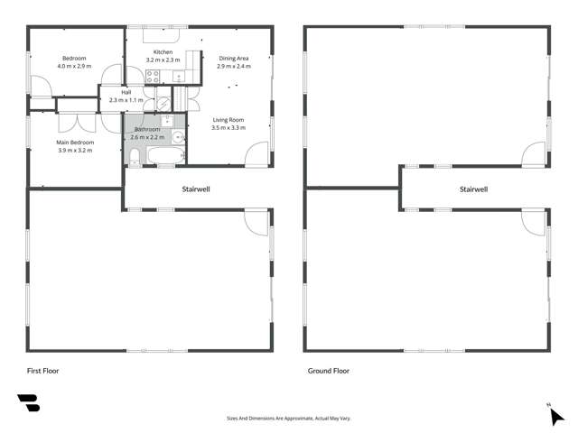
Floorplan

+18
Pictures18
Floorplan3
Map
Data
Property insights
Rating valuation
OneRoof mentions
Listed for sale on OneRoof for 47 days (last updated on 12 March) and was last sold in 2005 for $575,000. Its latest rating valuation by Upper Hutt City council is $2,120,000 as of 2025. This property has appeared in 2144 searches in the last 30 days. There are 2 16-bedroom properties for sale nearby. There are 21 properties for sale in Wallaceville.
Property data
On OneRoof
46 days
Property Type
Unit
Floor Area
590m²
Land Area
1,012m²
About the area
Market insights
Insights for all bedroom homes in Wallaceville
Property type
All property types
Bedrooms
All
Time (yrs)
5 yrs
Home services
Fortnightly Repayments
Loan term
Total interest
Interest rate
Total cost
Press calculate to work out your mortgage repayments and how quickly you can pay off your loan.


On your side with these great benefits
Natural disaster cover for earthquakes, natural landslips, hydrothermal activity, tsunami, natural fires, & volcanic activity.
Temporary accommodation for you, your family, and your pets if you need to be evacuated from your home.
Get replacement keys and locks if yours get lost or stolen and pay no excess.
Access to AMI HomeHub, our first-class home repairer that brings together a team of experts to take care of your home claim repairs from start to finish.
Learn about these great benefits and more
*Exclusions and limitations apply. Talk to us about these or refer to the full policy document which can be found on our website.

Wallaceville, Upper Hutt City
Wallaceville is a suburb which lies within the Territorial Authority of Upper Hutt, one of 27 residential suburbs which form the wider region. Wallaceville is the 8th largest suburb of Upper Hutt in terms of the total number of residential housing stock.
Wallaceville provides a range of housing stock, with the earliest residential housing recorded in the area constructed between 1900 - 1909. The majority of the residential housing stock in the locality was constructed between 1970 - 1979.
Residential housing stock in Wallaceville is made up of approximately 95% residential housing , 3% residential investment housing and 2% lifestyle properties.
Learn moreADVERTISEMENT




















