- 10b Raukawa Street

Floorplan

+21
Pictures21
Floorplan1
Map
Data
Property insights
Rating valuation
OneRoof mentions
Listed for sale on OneRoof for 26 days (last updated on 11 November) and was last sold in 2006 for $172,000. Its latest rating valuation by Lower Hutt City council is $460,000 as of 2022. There are 5 2-bedroom properties for sale nearby. There are 37 properties for sale in Stokes Valley.
Similar properties for sale
Property data
Broadband available
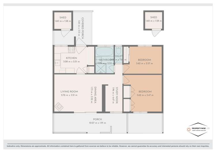
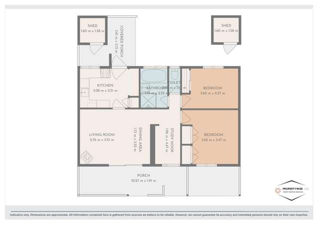
Floor area
72m²
Type of title
Cross-Lease
Decade of construction
1970s
About the area
Market insights
Insights for all bedroom homes in Stokes Valley
Property type
All property types
Bedrooms
All
Time (yrs)
5 yrs
Home services
Fortnightly Repayments
Loan term
Total interest
Interest rate
Total cost
Press calculate to work out your mortgage repayments and how quickly you can pay off your loan.


On your side with these great benefits
Natural disaster cover for earthquakes, natural landslips, hydrothermal activity, tsunami, natural fires, & volcanic activity.
Temporary accommodation for you, your family, and your pets if you need to be evacuated from your home.
Get replacement keys and locks if yours get lost or stolen and pay no excess.
Access to AMI HomeHub, our first-class home repairer that brings together a team of experts to take care of your home claim repairs from start to finish.
Learn about these great benefits and more
*Exclusions and limitations apply. Talk to us about these or refer to the full policy document which can be found on our website.

Stokes Valley, Lower Hutt City
Stokes Valley is a suburb which lies within the Territorial Authority of Lower Hutt, one of 38 residential suburbs which form the wider region. Stokes Valley is the 2nd largest suburb of Lower Hutt in terms of the total number of residential housing stock.
Stokes Valley provides a range of housing stock, with the earliest residential housing recorded in the area constructed between 1890 - 1899. The majority of the residential housing stock in the locality was constructed between 1960 - 1969.
Residential housing stock in Stokes Valley is made up of approximately 97% residential housing , 3% residential investment housing and 1% lifestyle properties.
Learn moreADVERTISEMENT




























