- 43B Harbour View Road


+19
Pictures19
Map
Video & 3D tour1
Data
Property data
Broadband available
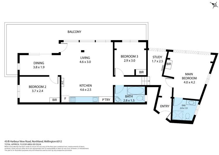
Floor area
110m²
Type of title
Unit Title
Decade of construction
1960s
About the area

Northland, Wellington City
Northland is a suburb which lies within the Territorial Authority of Wellington, one of 52 residential suburbs which form the wider region. Northland is the 22nd largest suburb of Wellington in terms of the total number of residential housing stock.
Northland provides a range of housing stock, with the earliest residential housing recorded in the area constructed between 1880 - 1889. The majority of the residential housing stock in the locality was constructed between 1960 - 1969.
Residential housing stock in Northland is made up of approximately 87% residential housing and 13% residential investment housing properties.
Learn moreADVERTISEMENT
Similar properties for rent






















