- 48 McFarlane Street


+34
Pictures34
Map
Video & 3D tour1
Data
Property insights
Rating valuation
OneRoof mentions
Listed for sale on OneRoof for 34 days (last updated on 15 April) and was last sold in 2021 for $5,500,000. Its latest rating valuation by Wellington City council is $4,570,000 as of 2024. There are 7 4-bedroom properties for sale nearby. There are 22 properties for sale in Mount Victoria.
Similar properties for sale
Property data
On OneRoof
33 days
Property Type
House
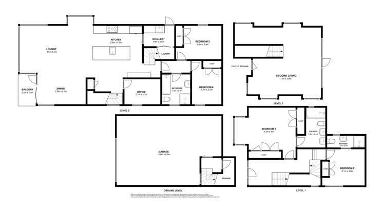
Floor Area
282m²
Land Area
214m²
About the area
Market insights
Insights for all bedroom homes in Mount Victoria
Property type
All property types
Bedrooms
All
Time (yrs)
5 yrs
Home services
Fortnightly Repayments
Loan term
Total interest
Interest rate
Total cost
Press calculate to work out your mortgage repayments and how quickly you can pay off your loan.


On your side with these great benefits
Natural disaster cover for earthquakes, natural landslips, hydrothermal activity, tsunami, natural fires, & volcanic activity.
Temporary accommodation for you, your family, and your pets if you need to be evacuated from your home.
Get replacement keys and locks if yours get lost or stolen and pay no excess.
Access to AMI HomeHub, our first-class home repairer that brings together a team of experts to take care of your home claim repairs from start to finish.
Learn about these great benefits and more
*Exclusions and limitations apply. Talk to us about these or refer to the full policy document which can be found on our website.

Mount Victoria, Wellington City
Mount Victoria is a suburb which lies within the Territorial Authority of Wellington, one of 52 residential suburbs which form the wider region. Mount Victoria is the 17th largest suburb of Wellington in terms of the total number of residential housing stock.
Mount Victoria provides a range of housing stock, with the earliest residential housing recorded in the area constructed between 1880 - 1889. The majority of the residential housing stock in the locality was constructed between 1890 - 1899.
Residential housing stock in Mount Victoria is made up of approximately 81% residential housing and 19% residential investment housing properties.
Learn moreADVERTISEMENT














































