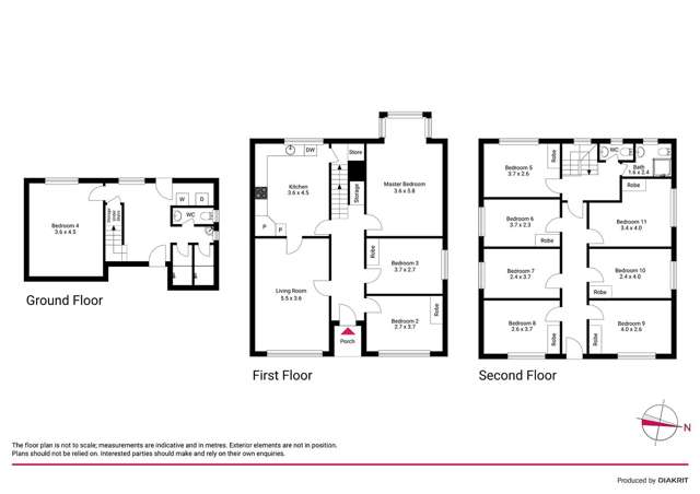
11-Bedroom House for Rent – 58 Thompson Street, Mt Cook
11 Bedrooms | 3 Bathrooms | Central Wellington
Looking for a massive, renovated home for your group?
58 Thompson Street is now available to rent as one entire property – ideal for a university flat or group of young professionals wanting to live together in the heart of the city.
$1,750 per week for the first four weeks then $2,500 per week for the remainder of the 12 month fixed term tenancy.
Key Features:
- Fully renovated 11-bedroom character home
- Huge modern kitchen with 90cm Fisher & Paykel gas oven, dishwasher & fridge/freezers
- Large lounge with 65” flatscreen TV
- 3 bathrooms + separate toilets
- Near new carpet, fresh paint & modern lighting
- Sunny private deck + outdoor space
- Double/queen beds, wardrobes & vanities in most rooms
- Powerful heat pump for year-round comfort
- Fast fibre internet installed
- Fully furnished and ready to go
Location:
- Super central – 5-minute walk to Cuba Street
- Easy access to buses, uni, Countdown, Newtown & more
- On-street parking available
Rent & Terms:
- Rent: $1,750 per week for the first four weeks then $2,500 per week for the remainder of the 12 month fixed term tenancy.
- Bond: 4 weeks' rent
- Available from: Jan/Feb 2026
- Lease: Fixed-term preferred, but we’re open to discussion
Ideal For:
A group of respectful, tidy and easy-going tenants looking for a warm, dry and social home in an unbeatable location.
Enquire today with a bit about your group and your preferred move-in date – large homes like this don’t come up often!
Features: Deck, Heating, Healthy Homes compliant, Furnished, Courtyard, Built-in wardrobe, Balcony, Air conditioning
TENANTS: To apply or schedule a viewing please click the email button to contact the landlord directly.
LANDLORDS: myRent.co.nz provides a cheaper solution to get your property in front of more potential tenants. We also offer property management for just $19/month.