- 137 Onepu Road
Recently sold
Sale price: $1,159,000


+19
Pictures
Map
137 Onepu Road, Lyall Bay, Wellington City
Property insights
OneRoof estimate
OneRoof mentions
This property was last sold in 2025 for $1,159,000. OneRoof now estimates this property to be $1,125,000 and its latest rating valuation by Wellington City council is $1,040,000 as of 2024. There are 11 properties for sale nearby. More property estimates in Lyall Bay are available.
Similar properties for sale
Property data
Broadband available
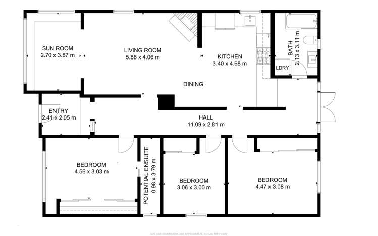
Floor area
139m²
Land area
392m²
Type of title
Freehold
ADVERTISEMENT
About the area
Market insights
Insights for all bedroom homes in Lyall Bay
Property type
All property types
Bedrooms
All
Time (yrs)
5 yrs
Home services
Fortnightly Repayments
Loan term
Total interest
Interest rate
Total cost
Press calculate to work out your mortgage repayments and how quickly you can pay off your loan.


On your side with these great benefits
Natural disaster cover for earthquakes, natural landslips, hydrothermal activity, tsunami, natural fires, & volcanic activity.
Temporary accommodation for you, your family, and your pets if you need to be evacuated from your home.
Get replacement keys and locks if yours get lost or stolen and pay no excess.
Access to AMI HomeHub, our first-class home repairer that brings together a team of experts to take care of your home claim repairs from start to finish.
Learn about these great benefits and more
*Exclusions and limitations apply. Talk to us about these or refer to the full policy document which can be found on our website.

Lyall Bay, Wellington City
Lyall Bay is a suburb which lies within the Territorial Authority of Wellington, one of 52 residential suburbs which form the wider region. Lyall Bay is the 21st largest suburb of Wellington in terms of the total number of residential housing stock.
Lyall Bay provides a range of housing stock, with the earliest residential housing recorded in the area constructed between 1900 - 1909. The majority of the residential housing stock in the locality was constructed between 1910 - 1919.
Residential housing stock in Lyall Bay is made up of approximately 89% residential housing and 11% residential investment housing properties.
Learn moreADVERTISEMENT



























