- 17/2 Onslow Road
Last sold: Jun 2024


+11
Pictures
Map
17/2 Onslow Road, Khandallah, Wellington City
Last sold Jun 2024
Property insights
OneRoof estimate
OneRoof mentions
This property was last sold in 2024 for $680,000. OneRoof now estimates this property to be $670,000 and its latest rating valuation by Wellington City council is $680,000 as of 2024. There are 48 properties for sale nearby. More property estimates in Khandallah are available.
Similar properties for sale
Property data
Type of title
Unit Title
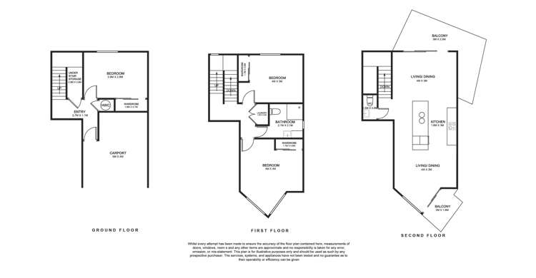
Floor area
90m²
Decade of Built
2000s
Deck
Yes
ADVERTISEMENT
About the area
Market insights
Insights for all bedroom homes in Khandallah
Property type
All property types
Bedrooms
All
Time (yrs)
5 yrs
Home services
Fortnightly Repayments
Loan term
Total interest
Interest rate
Total cost
Press calculate to work out your mortgage repayments and how quickly you can pay off your loan.


On your side with these great benefits
Natural disaster cover for earthquakes, natural landslips, hydrothermal activity, tsunami, natural fires, & volcanic activity.
Temporary accommodation for you, your family, and your pets if you need to be evacuated from your home.
Get replacement keys and locks if yours get lost or stolen and pay no excess.
Access to AMI HomeHub, our first-class home repairer that brings together a team of experts to take care of your home claim repairs from start to finish.
Learn about these great benefits and more
*Exclusions and limitations apply. Talk to us about these or refer to the full policy document which can be found on our website.

Khandallah, Wellington City
Khandallah is a suburb which lies within the Territorial Authority of Wellington, one of 52 residential suburbs which form the wider region. Khandallah is the 6th largest suburb of Wellington in terms of the total number of residential housing stock.
Khandallah provides a range of housing stock, with the earliest residential housing recorded in the area constructed between 1890 - 1899. The majority of the residential housing stock in the locality was constructed between 1970 - 1979.
Residential housing stock in Khandallah is made up of approximately 96% residential housing and 4% residential investment housing properties.
Learn moreADVERTISEMENT

























