- 3 Maramanui Way

Floorplan

+25
Pictures25
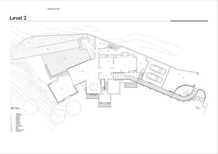
Floorplan3
Map
Video & 3D tour1
Data
Property insights
Rating valuation
OneRoof mentions
Listed for sale on OneRoof for 62 days (last updated on 27 March) and was last sold in 2001 for $900,000. Its latest rating valuation by Wellington City council is $2,625,000 as of 2024. This property has appeared in 2630 searches in the last 30 days. There are 4 4-bedroom properties for sale nearby. There are 8 properties for sale in Karaka Bays.
Similar properties for sale
Property data
On OneRoof
61 days
Property Type
House
Floor Area
331m²
Land Area
1,382m²
About the area
Market insights
Insights for all bedroom homes in Karaka Bays
Property type
All property types
Bedrooms
All
Time (yrs)
5 yrs
Home services
Fortnightly Repayments
Loan term
Total interest
Interest rate
Total cost
Press calculate to work out your mortgage repayments and how quickly you can pay off your loan.


On your side with these great benefits
Natural disaster cover for earthquakes, natural landslips, hydrothermal activity, tsunami, natural fires, & volcanic activity.
Temporary accommodation for you, your family, and your pets if you need to be evacuated from your home.
Get replacement keys and locks if yours get lost or stolen and pay no excess.
Access to AMI HomeHub, our first-class home repairer that brings together a team of experts to take care of your home claim repairs from start to finish.
Learn about these great benefits and more
*Exclusions and limitations apply. Talk to us about these or refer to the full policy document which can be found on our website.

Karaka Bays, Wellington City
Karaka Bays is a suburb which lies within the Territorial Authority of Wellington, one of 52 residential suburbs which form the wider region. Karaka Bays is the 41st largest suburb of Wellington in terms of the total number of residential housing stock.
Karaka Bays provides a range of housing stock, with the earliest residential housing recorded in the area constructed between 1890 - 1899. The majority of the residential housing stock in the locality was constructed between 1930 - 1939.
Residential housing stock in Karaka Bays is made up of approximately 95% residential housing and 5% residential investment housing properties.
Learn moreADVERTISEMENT

































