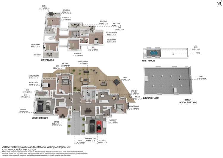
- 75B Paremata Haywards Road


+32
Pictures32
Map
Video & 3D tour1
Data
Property insights
OneRoof estimate
Interested in Porirua City?
Find estimateAbout the area
Home services
Fortnightly Repayments
Loan term
Total interest
Interest rate
Total cost
Press calculate to work out your mortgage repayments and how quickly you can pay off your loan.


On your side with these great benefits
Natural disaster cover for earthquakes, natural landslips, hydrothermal activity, tsunami, natural fires, & volcanic activity.
Temporary accommodation for you, your family, and your pets if you need to be evacuated from your home.
Get replacement keys and locks if yours get lost or stolen and pay no excess.
Access to AMI HomeHub, our first-class home repairer that brings together a team of experts to take care of your home claim repairs from start to finish.
Learn about these great benefits and more
*Exclusions and limitations apply. Talk to us about these or refer to the full policy document which can be found on our website.

Judgeford, Porirua City
Judgeford is a suburb which lies within the Territorial Authority of Porirua, one of 19 residential suburbs which form the wider region. Judgeford is the 15th largest suburb of Porirua in terms of the total number of residential housing stock.
Judgeford provides a range of housing stock, with the earliest residential housing recorded in the area constructed between 1890 - 1899. The majority of the residential housing stock in the locality was constructed between 2000 - 2009.
Residential housing stock in Judgeford is made up of approximately 6% residential housing and 94% lifestyle properties.
Learn more

































