- 3/37 Woodland Road

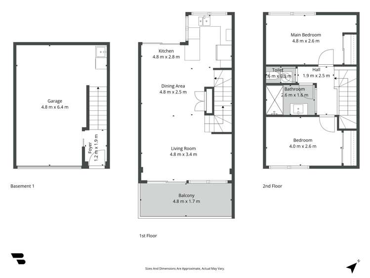
Floorplan

+19
Pictures19
Floorplan1
Map
Data
Property insights
OneRoof estimate
OneRoof mentions
Listed for sale on OneRoof for 11 days (last updated on 25 November) and was last sold in 2023 for $850,000. OneRoof now estimates this property to be $730,000 and its latest rating valuation by Wellington City council is $710,000 as of 2024. There are 12 2-bedroom properties for sale nearby. There are 46 properties for sale in Johnsonville.
Similar properties for sale
Property data
Broadband available
Floor area
113m²
Land area
85m²
Type of title
Freehold
About the area
Market insights
Insights for all bedroom homes in Johnsonville
Property type
All property types
Bedrooms
All
Time (yrs)
5 yrs
Home services
Fortnightly Repayments
Loan term
Total interest
Interest rate
Total cost
Press calculate to work out your mortgage repayments and how quickly you can pay off your loan.


On your side with these great benefits
Natural disaster cover for earthquakes, natural landslips, hydrothermal activity, tsunami, natural fires, & volcanic activity.
Temporary accommodation for you, your family, and your pets if you need to be evacuated from your home.
Get replacement keys and locks if yours get lost or stolen and pay no excess.
Access to AMI HomeHub, our first-class home repairer that brings together a team of experts to take care of your home claim repairs from start to finish.
Learn about these great benefits and more
*Exclusions and limitations apply. Talk to us about these or refer to the full policy document which can be found on our website.

Johnsonville, Wellington City
Johnsonville is a suburb which lies within the Territorial Authority of Wellington, one of 52 residential suburbs which form the wider region. Johnsonville is the 4th largest suburb of Wellington in terms of the total number of residential housing stock.
Johnsonville provides a range of housing stock, with the earliest residential housing recorded in the area constructed between 1880 - 1889. The majority of the residential housing stock in the locality was constructed between 1970 - 1979.
Residential housing stock in Johnsonville is made up of approximately 95% residential housing and 5% residential investment housing properties.
Learn moreADVERTISEMENT



























