- 1020 Fergusson Drive
Last sold: Sep 2024


+32
Pictures
Map
1020 Fergusson Drive, Clouston Park, Upper Hutt City
Last sold Sep 2024
Property insights
OneRoof estimate
OneRoof mentions
This property was last sold in 2024 for $825,500. OneRoof now estimates this property to be $825,000 and its latest rating valuation by Upper Hutt City council is $800,000 as of 2025. There are 7 properties for sale nearby. More property estimates in Clouston Park are available.
Similar properties for sale
Property data
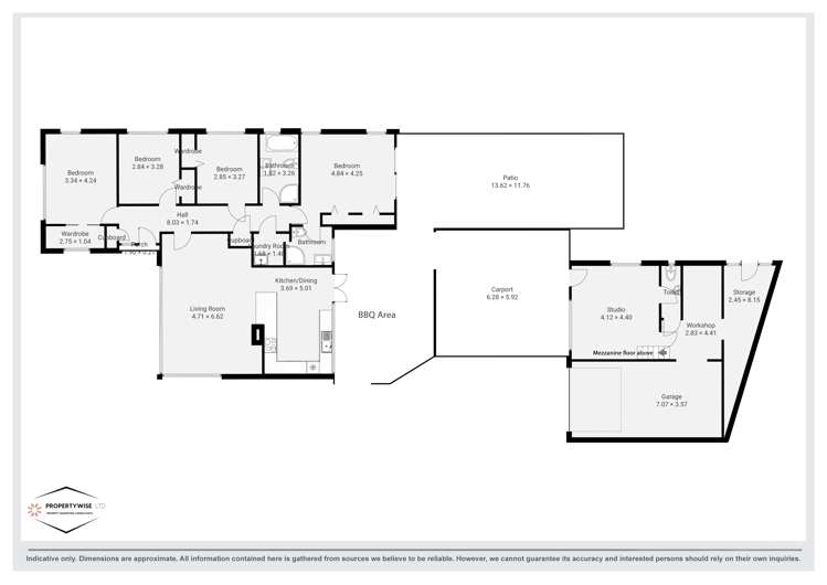
Floor Area
137m²
Land Area
850m²
Decade Built
1950s
Title
Freehold
ADVERTISEMENT
About the area
Market insights
Insights for all bedroom homes in Clouston Park
Property type
All property types
Bedrooms
All
Time (yrs)
5 yrs
Home services
Fortnightly Repayments
Loan term
Total interest
Interest rate
Total cost
Press calculate to work out your mortgage repayments and how quickly you can pay off your loan.


On your side with these great benefits
Natural disaster cover for earthquakes, natural landslips, hydrothermal activity, tsunami, natural fires, & volcanic activity.
Temporary accommodation for you, your family, and your pets if you need to be evacuated from your home.
Get replacement keys and locks if yours get lost or stolen and pay no excess.
Access to AMI HomeHub, our first-class home repairer that brings together a team of experts to take care of your home claim repairs from start to finish.
Learn about these great benefits and more
*Exclusions and limitations apply. Talk to us about these or refer to the full policy document which can be found on our website.

Clouston Park, Upper Hutt City
Clouston Park is a suburb which lies within the Territorial Authority of Upper Hutt, one of 27 residential suburbs which form the wider region. Clouston Park is the 7th largest suburb of Upper Hutt in terms of the total number of residential housing stock.
Clouston Park provides a range of housing stock, with the earliest residential housing recorded in the area constructed between 1910 - 1919. The majority of the residential housing stock in the locality was constructed between 1960 - 1969.
Residential housing stock in Clouston Park is made up of approximately 97% residential housing and 3% residential investment housing properties.
Learn moreADVERTISEMENT






































