- 50A Ashton Fitchett Drive

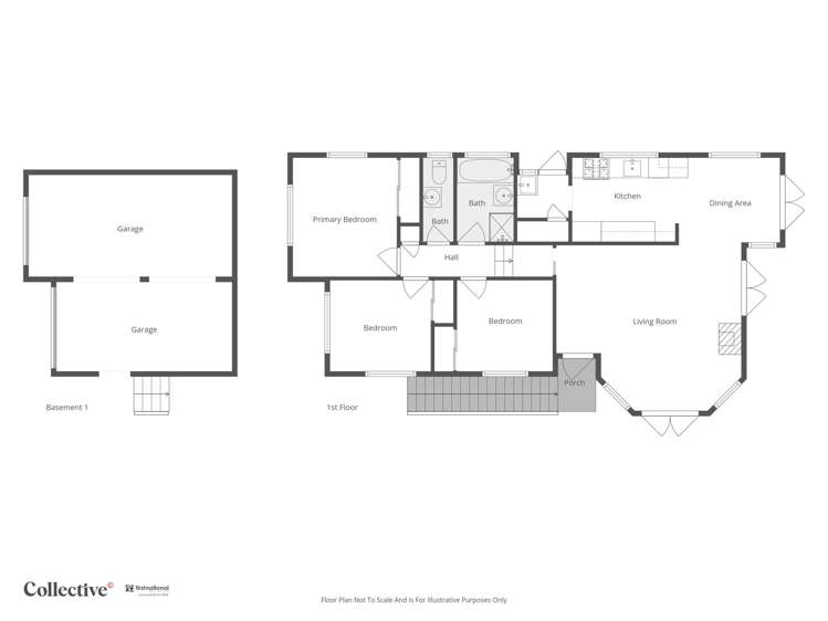
Floorplan

+17
Pictures17
Floorplan1
Map
Video & 3D tour1
Data
Property insights
OneRoof estimate
OneRoof mentions
Listed for sale on OneRoof for 54 days (last updated on 29 January) and was last sold in 2014 for $487,500. OneRoof now estimates this property to be $805,000 and its latest rating valuation by Wellington City council is $910,000 as of 2024. There are 19 3-bedroom properties for sale nearby. There are 29 properties for sale in Brooklyn.
Similar properties for sale
Property data
On OneRoof
53 days
Property Type
House
Floor Area
130m²
Decade Built
1990s
About the area
Market insights
Insights for all bedroom homes in Brooklyn
Property type
All property types
Bedrooms
All
Time (yrs)
5 yrs
Home services
Fortnightly Repayments
Loan term
Total interest
Interest rate
Total cost
Press calculate to work out your mortgage repayments and how quickly you can pay off your loan.


On your side with these great benefits
Natural disaster cover for earthquakes, natural landslips, hydrothermal activity, tsunami, natural fires, & volcanic activity.
Temporary accommodation for you, your family, and your pets if you need to be evacuated from your home.
Get replacement keys and locks if yours get lost or stolen and pay no excess.
Access to AMI HomeHub, our first-class home repairer that brings together a team of experts to take care of your home claim repairs from start to finish.
Learn about these great benefits and more
*Exclusions and limitations apply. Talk to us about these or refer to the full policy document which can be found on our website.

Brooklyn, Wellington City
Brooklyn is a suburb which lies within the Territorial Authority of Wellington, one of 52 residential suburbs which form the wider region. Brooklyn is the 10th largest suburb of Wellington in terms of the total number of residential housing stock.
Brooklyn provides a range of housing stock, with the earliest residential housing recorded in the area constructed between 1880 - 1889. The majority of the residential housing stock in the locality was constructed between 1900 - 1909.
Residential housing stock in Brooklyn is made up of approximately 86% residential housing , 12% residential investment housing and 1% lifestyle properties.
Learn moreADVERTISEMENT































