- 69 Evans Road
Recently sold
Sale price: $1,080,000


+34
Pictures
Map
69 Evans Road, Upper Plain, Masterton
Sold for $1,080,000
Property insights
OneRoof estimate
OneRoof mentions
This property was last sold in 2025 for $1,080,000. OneRoof now estimates this property to be $1,040,000 and its latest rating valuation by Masterton council is $1,060,000 as of 2023. There are 7 properties for sale nearby. More property estimates in Upper Plain are available.
Similar properties for sale
Property data
Broadband available
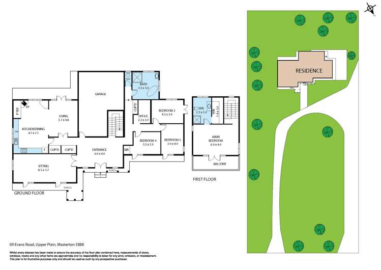
Floor area
310m²
Land area
1ha
Type of title
Freehold
ADVERTISEMENT
About the area
Market insights
Insights for all bedroom homes in Upper Plain
Property type
All property types
Bedrooms
All
Time (yrs)
5 yrs
Home services
Fortnightly Repayments
Loan term
Total interest
Interest rate
Total cost
Press calculate to work out your mortgage repayments and how quickly you can pay off your loan.


On your side with these great benefits
Natural disaster cover for earthquakes, natural landslips, hydrothermal activity, tsunami, natural fires, & volcanic activity.
Temporary accommodation for you, your family, and your pets if you need to be evacuated from your home.
Get replacement keys and locks if yours get lost or stolen and pay no excess.
Access to AMI HomeHub, our first-class home repairer that brings together a team of experts to take care of your home claim repairs from start to finish.
Learn about these great benefits and more
*Exclusions and limitations apply. Talk to us about these or refer to the full policy document which can be found on our website.

Upper Plain, Masterton District
Upper Plain is a suburb which lies within the Territorial Authority of Masterton, one of 23 residential suburbs which form the wider region. Upper Plain is the 5th largest suburb of Masterton in terms of the total number of residential housing stock.
Upper Plain provides a range of housing stock, with the earliest residential housing recorded in the area constructed between 1880 - 1889. The majority of the residential housing stock in the locality was constructed between 1990 - 1999.
Residential housing stock in Upper Plain is made up of approximately 9% residential housing , 1% residential investment housing and 91% lifestyle properties.
Learn moreADVERTISEMENT






































