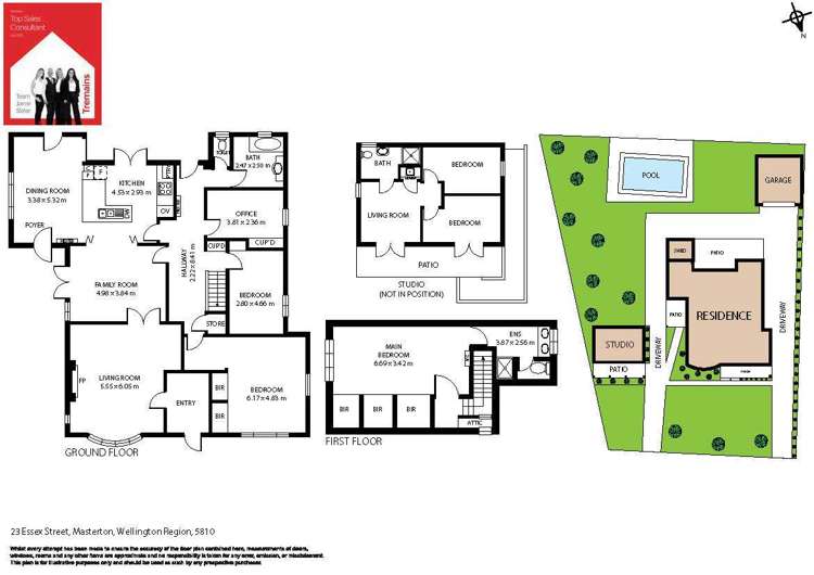
- 23 Essex Street


Listed for sale on OneRoof for 98 days (last updated on 20 January) and was last sold in 1999 for $215,000. OneRoof now estimates this property to be $860,000 and its latest rating valuation by Masterton council is $800,000 as of 2023. This property has appeared in 2732 searches in the last 30 days. There are 38 4-bedroom properties for sale nearby. There are 187 properties for sale in Masterton.



Masterton is a suburb within the Masterton Territorial Authority. It is one of 23 residential suburbs in the region and is the largest suburb in terms of housing stock.
The oldest properties in Masterton date back to the 1880s, but most of its homes were built in the 1960s. Masterton’s housing stock consists of approximately 89% owner-occupied residential homes, 8% lifestyle properties and 2% investment properties.
With iconic landmarks such as the Masterton Clocktower, Wairarapa Arts Centre, and Queen Elizabeth Park, Masterton offers a variety of properties that provide a refreshing escape from the hustle and bustle of city life. Additionally, its accessibility to Wellington City makes it an even more desirable place for those who want a mix of small-town living and the conveniences of a nearby city.
Find properties for sale in Masterton, Masterton
























































